Vuokrataan toimistotilat - Helsinki
Työpajankatu 9, Kalasatama, 00580 Helsinki #10816717
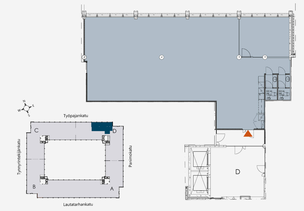
Hiljattain kokonaan remontoitu toimistotila 210,5 m2 Troolin D-rapussa. Tämän toimiston valoisaan monitilatoimistoon mahtuu kalustuksen toteutuksesta riippuen 10-27 työpistettä. Tilassa on 3 yhden hengen työhuonetta, tiimityötiloja ja neuvotteluhuone 8 hengelle. Toimiston keskiössä sijaitsevat tiimi- ja hiljaiset huoneet sekä lounge. Keittiö + taukotila sijaitsevat omassa rauhassaan, mutta keskeisellä paikalla. Lisäksi toimistossa on varasto/siivouskomero.
Ikkunat avautuvat itään kadulle ja länteen sisäpihalle.
Tilassa on datakaapelointi talojakamosta vuokratilaan; kuitukaapelointi (4 yksimuoto + 4monimuoto) ja tilan sisäinen kaapelointi CAT6- kaapelointi. Ota yhteyttä ja sovi esittely, palvelumme on tilanhakijoille ilmainen.
Kauppakeskus REDI noin 250m etäisyydellä.
Näkyvällä paikalla
Hissi
Senaatin Notariaatti Oy LKV
Lämmittäjänkatu 4 A
FIN-00880 Helsinki
Tel:
Näytä puhelinnumero
+358 9 7745 100
