Vuokrataan toimistotilat - Helsinki
Pursimiehenkatu 29-31, Punavuori, 00150 Helsinki #10816711
Korkea toimitila tunnelmallisessa Merikorttelissa Punavuoren upeassa miljöössä joka soveltuu monenlaiseen käyttöön.
Merikorttelissa Helsingin Punavuoressa on tarjolla tiloja yrityksesi tarpeisiin. Merikortteli on alun perin rakennettu lähinnä teollisuustuotantoa varten ja peruskorjattu korkeatasoisiksi toimisto-, studio-, asiantuntija- ja työtiloiksi, unohtamatta säilyttää teollista jylhyyttä. Kortteli on hyvien julkisten yhteyksien päässä sekä kävelymatkan päässä ydinkeskustasta. Länsiväylän alkuun on 1,5 km.
Korttelissa on päivittäistavarakauppa ja lähiympäristössä useita lounasravintoloita, kuntosali sekä erikoisliikkeitä. Merikorttelin läntinen ja eteläinen lähialue kehittyy voimakkaasti tulevina vuosina Länsisataman ja Eiranrannan asunto- ja toimistorakentamisen myötä.
Lisätietoja numerosta 020 7290 710. Lisää kohteita osoitteessa premises.fi.
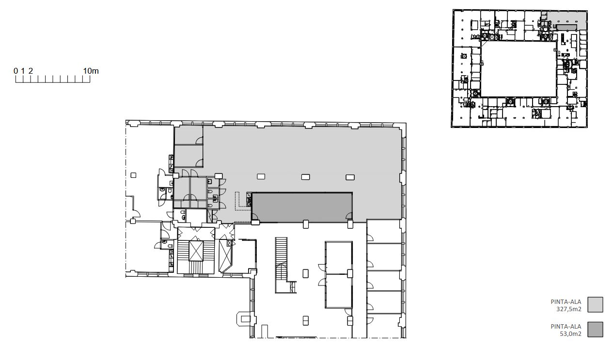
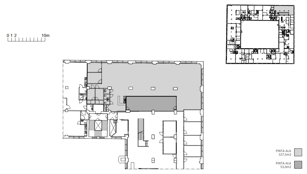
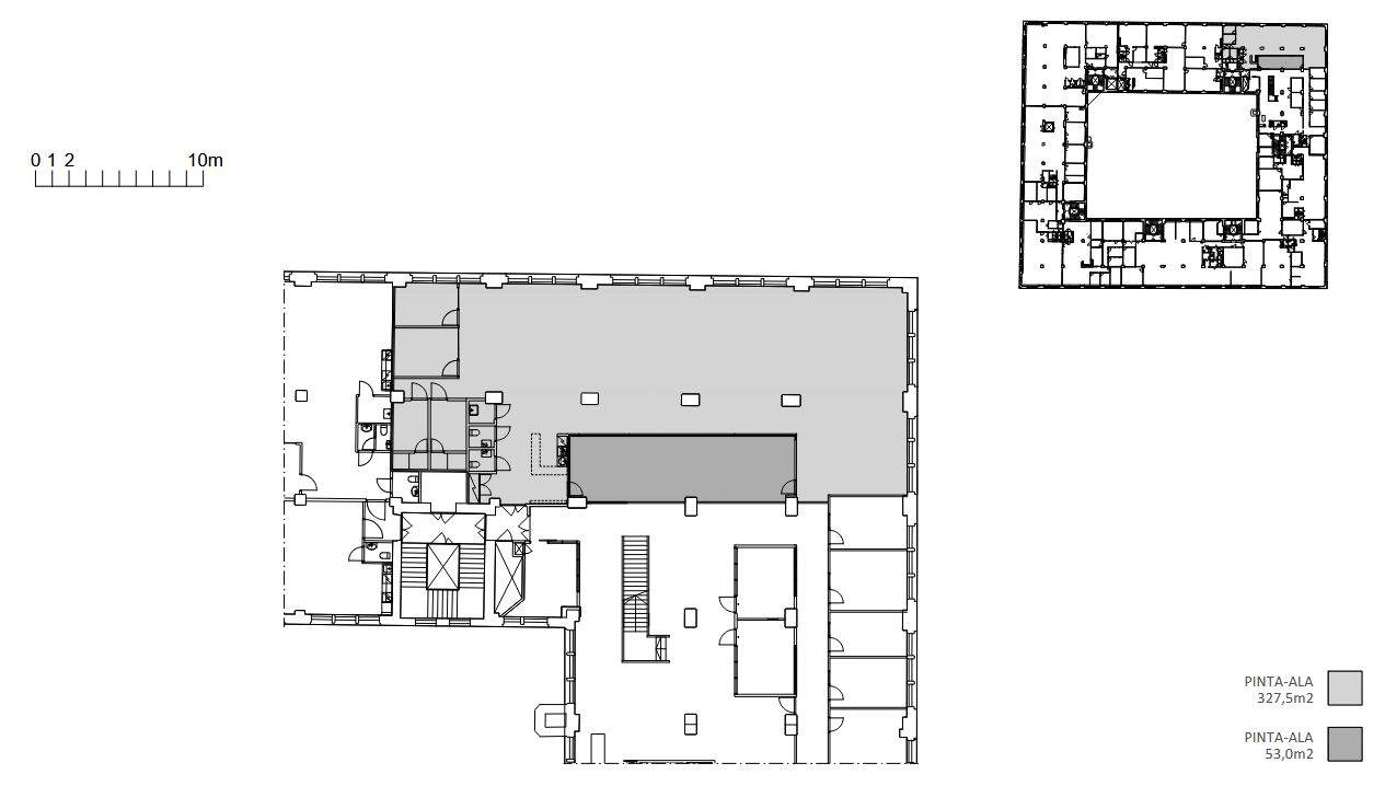
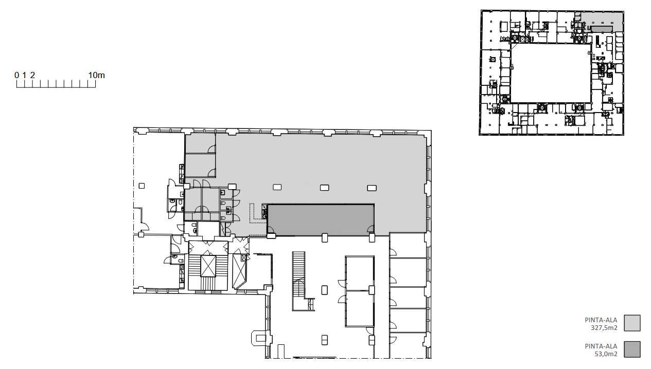
Kohteella ei ole lain edellyttämää energiatodistusta.Kerros: 2
CRE PREMISES
Puh. Näytä puhelinnumero 020 7290 710
Vantaankoskentie 14
01670 VANTAA
