Vuokrataan toimistotilat - Helsinki
Siltasaarenkatu 8-10, Hakaniemi, 00530 Helsinki #10816699
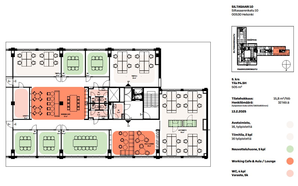
Vuokrataan 5. kerroksen 505 m2 toimistotila. Tilan kokoa voidaan joustavasti kasvattaa.
Vuokrataan uutta, remontoitua tyylikästä ja edustavaa toimitilaa upealta sijainnilta Hakaniemestä, palveluiden ja julkisten kulkuvälineiden varrelta. Ohessa havainnollistavia kuvia kiinteistöstä.
Kulttuurihistoriallisesti arvokas kiinteistö tarjoaa laadukasta toimistotilaa, palveluita, kuten päivittäistavarakaupan, aulapalvelun, neuvottelu-, tapahtuma- ja projektityötiloja sekä co-working tilaa.
Lisäksi asiakkaiden käytössä ovat laadukkaat sosiaalitilat ja helppokäyttöiset pyörävarastot. Autopaikkoja on saatavilla kellarikerroksesta.
Lisätietoja ja lisää kuvia 020 7290 710. Lisää kohteita osoitteesta www.premises.fi
Kohteella ei ole lain edellyttämää energiatodistusta tai energialuokka ei tiedossa.Kerros: 5
CRE PREMISES
Puh. Näytä puhelinnumero 020 7290 710
Vantaankoskentie 14
01670 VANTAA
