Vuokrataan toimistotilat - Helsinki
Siltasaarenkatu 8-10, Hakaniemi, 00530 Helsinki #10816673
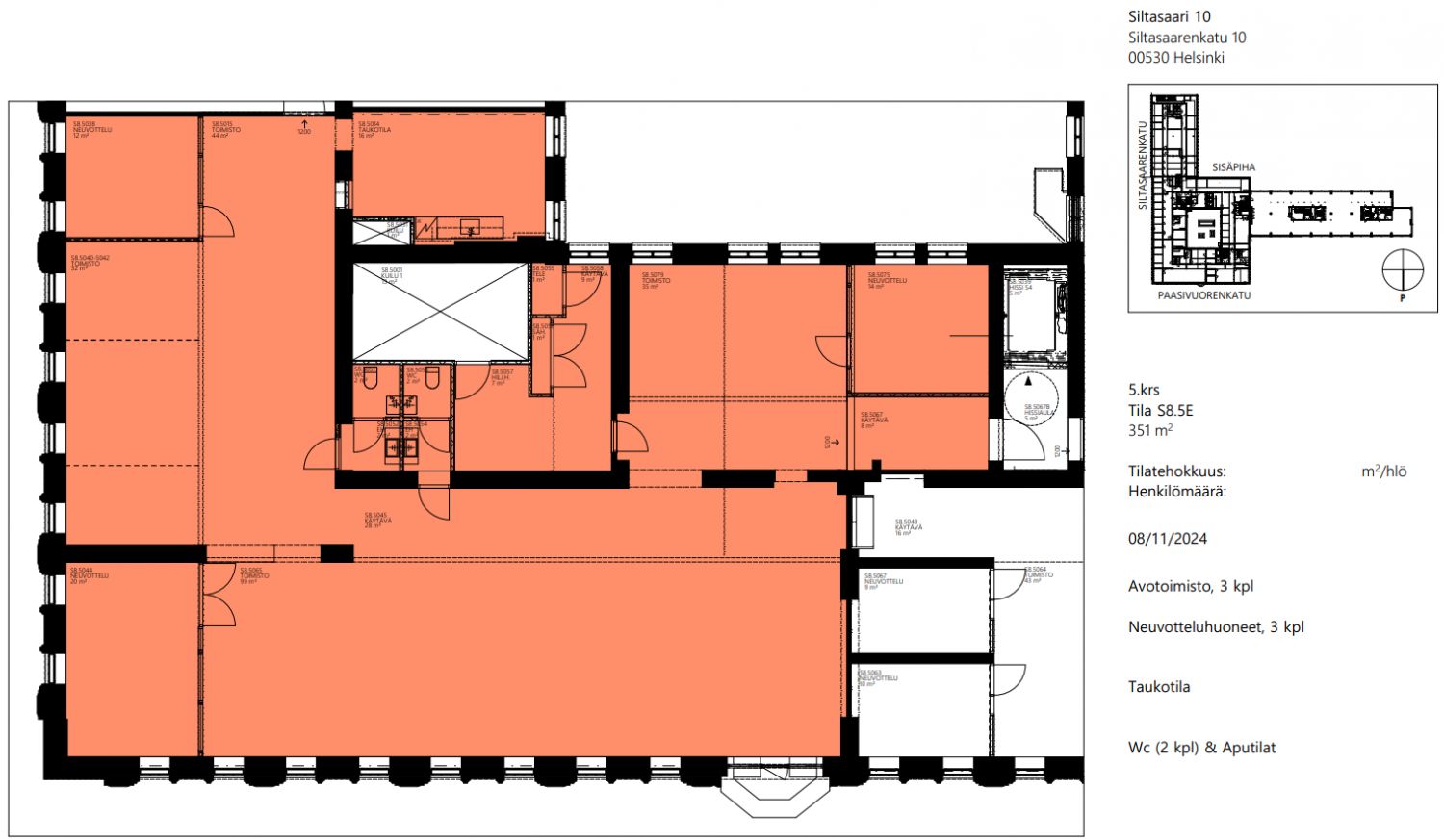
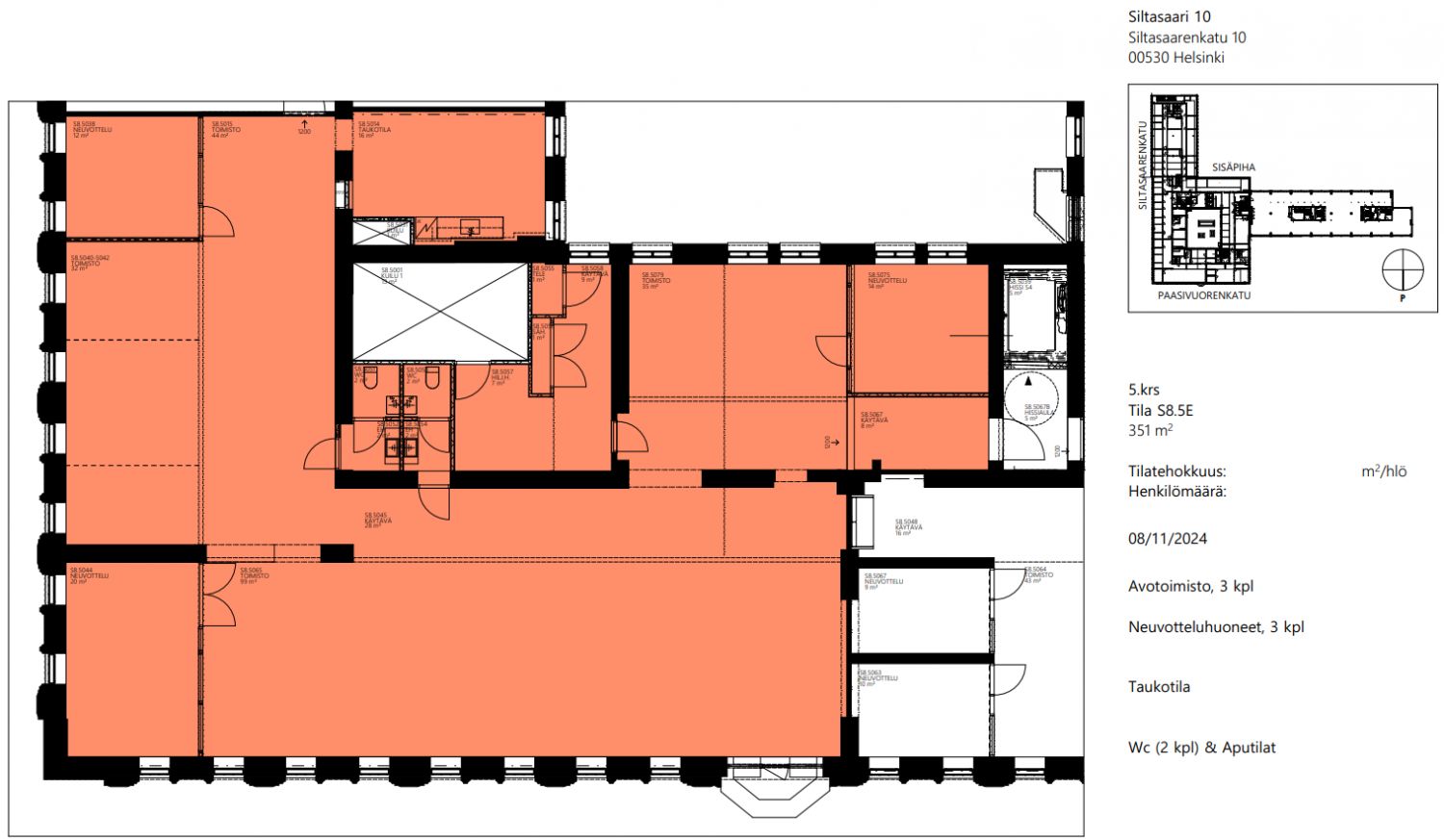
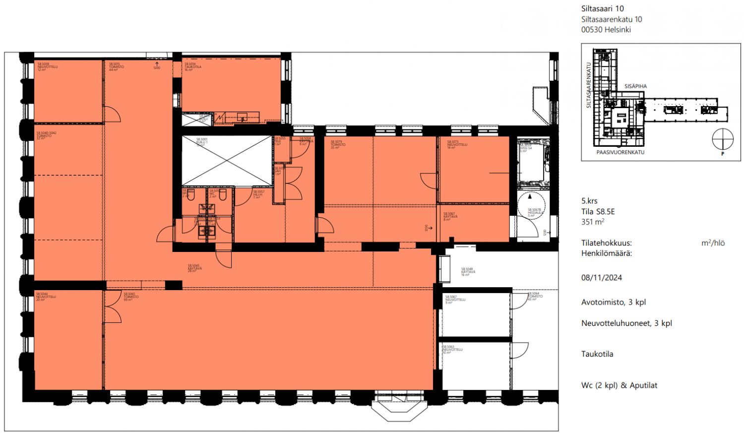
Rakennuksen kuvaus:
Hakaniemen Siltasaari 10 -kehityshanke valmistui loppuvuodesta 2021 ja sykkii elämää lähes ympäri vuorokauden. Kolmesta rakennuksesta koostuva kokonaisuus keskittää liikemaailman, kulttuurin sekä vapaa-ajan yhteen ja luo Hakaniemeen kaupunkikulttuurin keskuksen. Yrityksille on tarjolla moderneja, tyylikkäitä ja mukautuvia tiloja. Kiinteistöllä on erittäin laajat ja kattavat palvelut, esim. aulapalvelu, useita ravintoloita sekä kymmeniä vuokrattavia neuvottelu-, tapahtuma-, projekti- ja ryhmätyötiloja, monikäyttöisellä POOL-konseptilla. Metroasema sijaitsee aivan kohteen vieressä. LEED Platinum-serifioitu.
Tilan kuvaus:
Vuokrataan muuttovalmis, hienosti remontoitu tila! Viidennessä kerroksessa vuokrattavissa valoisa toimisto, jossa isot ikkunat ja näkymät Paasivuorenpuistikkoon. Tila on tehokas monitilatoimisto, jossa on avotilaa, erilaisia vetäytymis- ja neuvottelutiloja sekä keittiölounge. Käyttövalmis heti sopimuksen allekirjoituksesta!
Kerros: 5
