Vuokrataan toimistotilat - Helsinki
Merimiehenkatu 36, Punavuori, keskusta, 00150 Helsinki #10816666
Rakennuksen kuvaus:
Kokonaisen kaupunkikorttelin laajuinen maamerkki, Merikortteli, valmistui 1920-luvulla puhelinkaapelitehtaaksi. Nykyisin kulttuurihistoriallisesti arvokas talo tarjoaa industrial-henkistä toimistotilaa upeine korkeine huoneineen ja isoine tehdasikkunoineen. Tehdashistoriasta muistuttaa useampi tavarahissi. Toimitilojen lisäksi kiinteistössä on jonkin verran liike- sekä varastotilaa sekä laaja sisäpiha ja pysäköintihalli. Talo sijaitsee lähellä merta Punavuoren sydämessä, ratikkalinjan varrella.
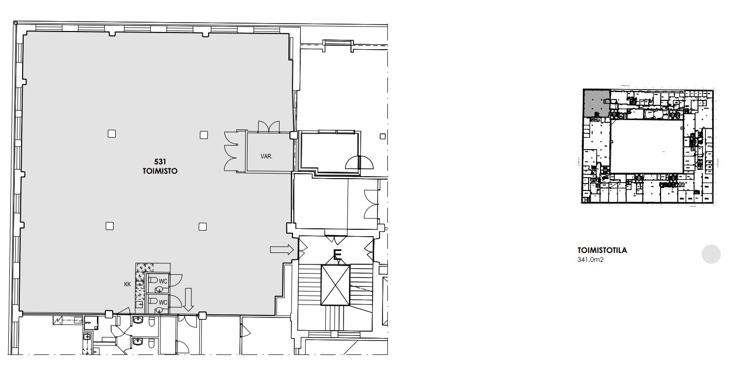
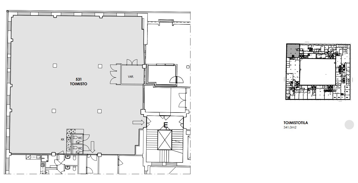
Tilan kuvaus:
Vapaana upea muuttovalmis loft-henkinen showroom tai avotoimisto, josta aukeaa näkymät sekä Merimiehenkadulle että Pursimiehenkadulle. Sijainti rakennuksen kulmassa ja suuret ikkunapinnat kahteen suuntaan tekevät tilasta valoisan.
Kerros: 5
