Vuokrataan toimistotilat - Helsinki
Mannerheimintie 15b, Taka-Töölö, 00260 Helsinki #10816595
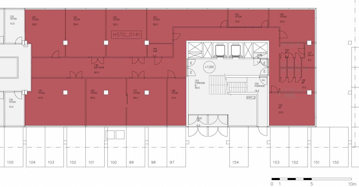
Katutason 410 m² toimistotila entisen Töölön sokeritehtaan alueella Taka-Töölössä
Osoite
Mannerheimintie 15b, 00260 Helsinki
Tilatyyppi
Toimistotilaa
410 m2
Pohjapiirros
Kiinteistö
1. kerroksen toimistotilaa Oopperatalon vieressä, entisen Töölön sokeritehtaan alueella. Tila on muokattavissa käyttäjän tarpeiden mukaan. Hienot näkymät toiselta puolelta Töölönlahden suuntaan.
Kiinteistö sijaitsee erinomaisella paikalla, Helsingin keskustan palveluiden keskellä. Perille pääset niin autolla, julkisilla kulkuvälineillä kuin pyörälläkin.
Kiinteistö sijaitsee erinomaisella paikalla, Helsingin keskustan palveluiden keskellä. Perille pääset niin autolla, julkisilla kulkuvälineillä kuin pyörälläkin.
Vapautuu
Heti
Rakennusvuosi
1974
Kerros
1 / 5
Energiatehokkuusluokka
Ei lain edellyttämää energiatodistusta
Katutasossa
Hissi
Ota yhteyttä
ScanReal Oy LKV
Opus Business Park
Hitsaajankatu 24
00810 Helsinki
info@scanreal.fi
Puh:
Näytä puhelinnumero
020 730 8830
Sopivat toimitilat yhdellä otolla!
Kartoitamme toimitilatarpeesi ja etsimme yrityksellesi parhaiten sopivat vapaat toimitilat. Koska vuokranantajat maksavat palvelumme, on tämä yrityksellesi veloituksetonta.
OTA YHTEYTTÄ - SOVI NÄYTTÖ!
Kaikki kohteemme eivät ole netissä, kerro tilatarpeesi niin kartoitamme vaihtoehdot.
Palvelumme on tilanhakijalle ilmainen
Pyydä lisätietoa
