Vuokrataan toimistotilat, tuotantotilat, varastotilat - Espoo
Koskelontie 13, Koskelo, 02920 Espoo #10816592
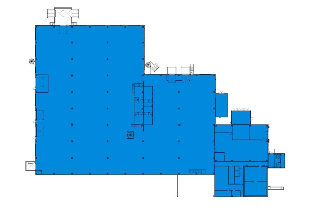
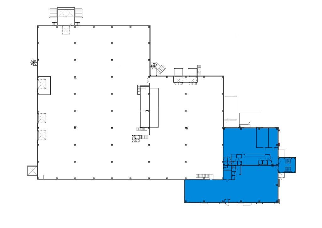
Koko varasto- ja toimistokiinteistö Espoosta
Osoite
Koskelontie 13, 02920 Espoo
Tilatyyppi
Toimistotilaa
9039 m2
Tuotantotilaa
9039 m2
Varastotilaa
9039 m2
Yhteensä
9039 m2
Muuta
Vuokrattavana 9 039 m² koko kiinteistö, jossa varasto-, tuotanto- ja toimistotilaa Espoon Koskelon alueella.
Erinomainen sijainti tarjoaa hyvät kulkuyhteydet ja saavutettavuuden.
Tilat ovat muokattavissa ja remontoitavissa käyttäjien toiveiden mukaisesti, mikä mahdollistaa joustavat ratkaisut eri tarpeisiin. Kiinteistö soveltuu monipuolisesti varastointi-, tuotanto- ja toimistokäyttöön.
Tervetuloa tutustumaan, varaathan välittäjältä oman esittelyaikasi. Voit kysyä meiltä myös muita sopivia vaihtoehtoja, kauttamme löydät juuri Teidän tarpeisiinne sopivat tilat.
Palvelumme on tilanhakijalle veloitukseton!
Erinomainen sijainti tarjoaa hyvät kulkuyhteydet ja saavutettavuuden.
Tilat ovat muokattavissa ja remontoitavissa käyttäjien toiveiden mukaisesti, mikä mahdollistaa joustavat ratkaisut eri tarpeisiin. Kiinteistö soveltuu monipuolisesti varastointi-, tuotanto- ja toimistokäyttöön.
Tervetuloa tutustumaan, varaathan välittäjältä oman esittelyaikasi. Voit kysyä meiltä myös muita sopivia vaihtoehtoja, kauttamme löydät juuri Teidän tarpeisiinne sopivat tilat.
Palvelumme on tilanhakijalle veloitukseton!
Vapautuu
Kysy
Ota yhteyttä
Tuloskiinteistöt Oy
Rikhardinkatu 2 B 5, 00130 Helsinki
Näytä puhelinnumero
(09) 6841 620
Jorma Ryynänen
Commercial Real Estate Advisor LKV, LVV
Näytä puhelinnumero
+358 40 708 4064
Otto Ahtola
Commercial Real Estate Advisor
Näytä puhelinnumero
+358 40 042 2830
Pyydä lisätietoa
