Vuokrataan liiketilat, varastotilat - Helsinki
Bulevardi 32, Punavuori, 00120 Helsinki #10816565
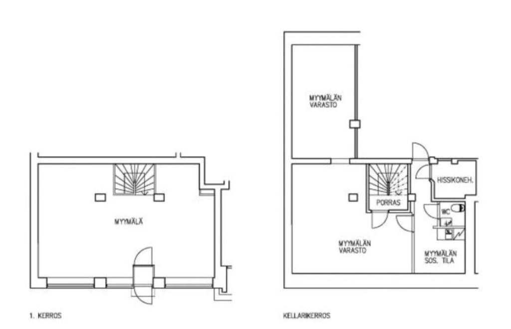
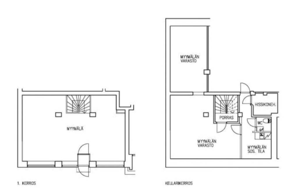
Asuintalon kivijalassa sijaitseva katutason 50 m² liiketila + kellaritilat n. 64,5 m².
Osoite
Bulevardi 32, 00120 Helsinki
Tilatyyppi
Liiketilaa
50 m2
Varastotilaa
64,5 m2
Yhteensä
114,5 m2
Pohjapiirros
Kiinteistö
Asuintalon kivijalassa sijaitseva liiketila jossa isot ikkunat Albertinkadulle.
Katutasossa n. 50 m² ja kellarissa n. 64,5 m² .
Käynti Albertinkadun puolelta.
Tila ei sovellu kahvilaksi tai ravintolaksi.
Katutasossa n. 50 m² ja kellarissa n. 64,5 m² .
Käynti Albertinkadun puolelta.
Tila ei sovellu kahvilaksi tai ravintolaksi.
Vapautuu
Heti
Kerros
1
Energiatehokkuusluokka
E
Katutasossa
Näkyvällä paikalla
Ota yhteyttä
ScanReal Oy LKV
Opus Business Park
Hitsaajankatu 24
00810 Helsinki
info@scanreal.fi
Puh:
Näytä puhelinnumero
020 730 8830
Sopivat toimitilat yhdellä otolla!
Kartoitamme toimitilatarpeesi ja etsimme yrityksellesi parhaiten sopivat vapaat toimitilat. Koska vuokranantajat maksavat palvelumme, on tämä yrityksellesi veloituksetonta.
OTA YHTEYTTÄ - SOVI NÄYTTÖ!
Kaikki kohteemme eivät ole netissä, kerro tilatarpeesi niin kartoitamme vaihtoehdot.
Palvelumme on tilanhakijalle ilmainen
Pyydä lisätietoa
