Vuokrataan liiketilat - Helsinki
Kaivopiha, Mannerheimintie 3, Keskusta, 00100 Helsinki #10816503
Moderni liiketila Helsingin kävelykeskustassa Kaivopihalla. Se on monikäyttöinen tila, joka koostuu useista huoneista. SOITA ja SOVI ESITTELY, puhelin: 09 7745 100.
Osoite
Mannerheimintie 3, 00100 Helsinki
Tilatyyppi
Liiketilaa
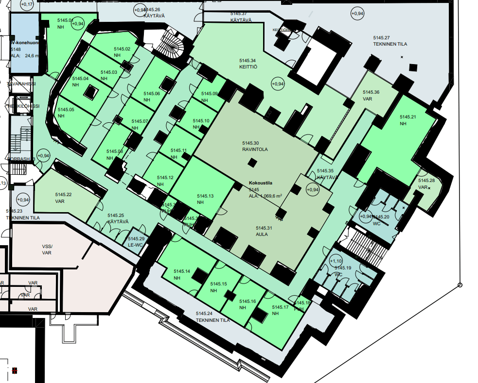
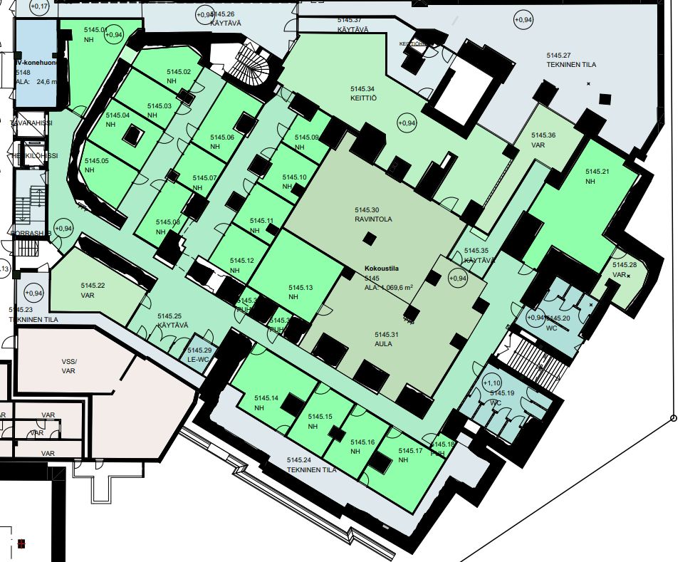
1070 m2
Pohjapiirros
Kiinteistö
Kaivopiha
Sijainti
Ydinkeskustassa City-Korttelissa.
Ympäristö
Liikekeskus Kaivopiha-Citykortteli
Pysäköinti
Maanalainen pysäköinti Eliel, Stockmann, Forum
Kulkuyhteydet
Juna, ratikat, bussit
Muuta
Tilassa ei voi valmistaa ruokaa.
Vapautuu
Heti
Kerros
-1
Ota yhteyttä
Senaatin Notariaatti Oy LKV
Lämmittäjänkatu 4 A
FIN-00880 Helsinki
Tel:
Näytä puhelinnumero
+358 9 7745 100
Pyydä lisätietoa
