Vuokrataan toimistotilat - Helsinki
Elimäenkatu 25-27, Vallila, 00510 Helsinki #10816486
Rakennuksen kuvaus:
Berlin/Vallila tarjoaa moderneja työtiloja vanhassa teollisuusrakennuksessa. Berlin/Vallila koostuu kahdesta yhteisen sisäpihan yhdistämästä kiinteistöstä ja se tarjoaa kodin uuden ajan rohkeille yrityksille. Kohde uudistetaan ja sen industriaalihenkiset tilat modernisoidaan uusille käyttäjille. Vanhan osan toimistoissa on hyvä huonekorkeus ja vanhan tehtaan tunnelmaa. Talossa on aulapalvelu ja ravintola sekä suihkut ja pyöräparkki.
Tilan kuvaus:
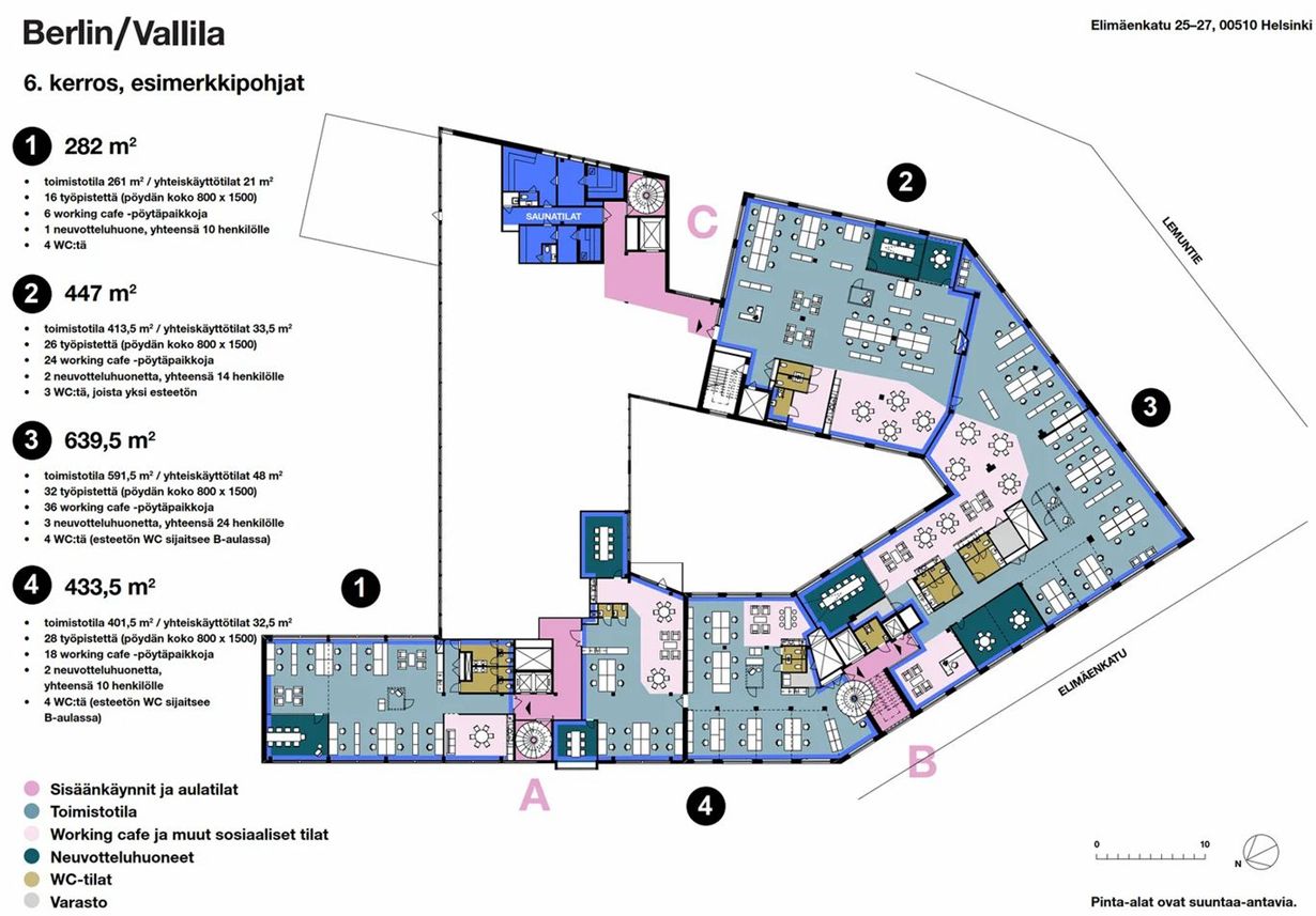
Moderneja industriaalitiloja! Berlin/Vallila on purettu suurilta osin betonille, mahdollistaen vapaiden tilojen räätälöinnin vuokralaisten toiveiden ja tarpeiden mukaan. Vapaiden kerroksien kerroskoko vaihtelee aina jopa 2.595 m² asti sallien joustavat tilajaot ja tilakoot. Tämä upea ylimmän kerroksen 639.5 m2 kulmatoimisto sijaitsee kiinteistön vanhemmalla puolella, jossa on upeat ristikkoikkunat molemmilla pitkillä seinillä tehden tilasta avaran ja valoisan.
Olipa yrityksesi jo iso ja tunnettu tai sitten skaalautumisen kynnyksellä oleva startup, toimitilojesi täytyy tukea liiketoimintaasi ja innostaa työntekijöitäsi. Tutustu osoitteessa berlinvallila(.)fi tai soita numeroon 050 464 8640.
Oheiset havainnekuvat ovat luotu markkinointitarkoituksiin eivätkä välttämättä edusta lopullista toteutusta.
Kerros: 6
