Vuokrataan liiketilat - Helsinki
Kampinkuja 2, Kamppi, keskusta, 00100 Helsinki #10816476
Rakennuksen kuvaus:
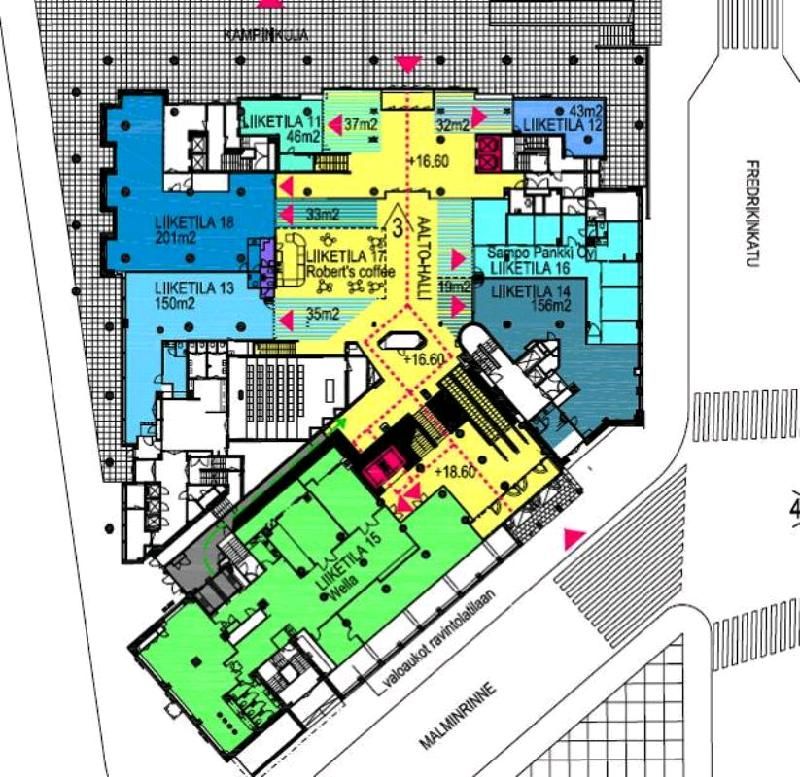
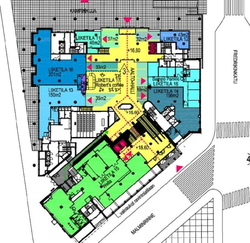
Sähkötalo Kampissa on Alvar Aallon suunnittelema kiinteistö keskeisellä paikalla hyvien yhteyksien äärellä. Sähkötalo on valmistunut v.1972, kiiteistössä on toimistotilaa, entinen sähköasema sekä myymälätilaa, kahvila ja ravintoloita.
Tilan kuvaus:
Myymälätilaa huippupaikalta Kampista, Sähkötalon katutasosta. Tila on jaettavissa 150/201 m2 ja sopii erinomaisesti esim. hyvinvoinnin tai terveysalan toimijoille. Tilaa ei vuokrata ravintola- tai kahvilakäyttöön.
Kerros: 1
Osoite
Kampinkuja 2, 00100 Helsinki
Tilatyyppi
Liiketilaa
351 m2
Vapautuu
Heti vapaa
Ota yhteyttä
Pyydä lisätietoa
