Vuokrataan toimistotilat - Helsinki
Kuortaneenkatu 2, Vallila, 00510 Helsinki #10816474
Rakennuksen kuvaus:
Kuortaneenkatu 2 on laadukas ja valoisa toimistokohde Vallilassa, kävelyetäisyydellä Pasilasta ja Triplan keskukselta. Talo on uudistettu vuosina 2012-2013 ja modernisoitu entisestään vuonna 2020. Kiinteistössä on ravintola, kahvila ja aula palvelemassa vuokralaisia sekä tyylikkäät kokoustilat auditorioineen. Talon tunnistaa sen Kuortaneenkadun puoleisesta lasisesta päädystä, josta tulvii tiloihin runsaasti luonnonvaloa. Talossa on muutenkin isot ikkunat, korkea huonekorkeus ja viihtyisät olosuhteet.
Tilan kuvaus:
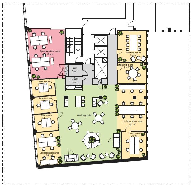
Tämä 6. kerroksen tila on nykymuodossaan jaettu työhuoneisiin, mutta muutokset tilankäyttöön uudelle vuokralaiselle ovat mahdollisia.
Kerros: 6
