Vuokrataan toimistotilat - Helsinki
Firdonkatu 1, Pasila, 00520 Helsinki #10816463
Rakennuksen kuvaus:
Firdo sijoittuu Helsingin keskeisimmälle sijainnille Pasilaan, Helsingin uuteen keskustaan. Ihanteellinen saavutettavuus takaa loistavat yhteydet niin julkisella liikenteellä, autolla kuin pyörälläkin. Kohteelle rakentuu upea 3:n kerroksen korkuinen aula, ja toimistotiloista tulee näyttävät huonekorkeuden ja isojen ikkunoiden ansiosta. Palveluihin lukeutuu mm. ravintola, vastaanotto, kokouskeskus, parkkihalli ja liikuntatila, joiden lisäksi Triplan kattavat palvelut ovat aivan vieressä. Myös vastuullisuus ja työhyvinvointi ovat Firdossa keskiössä, ja rakennukselle tavoitellaan LEED Platinum ja WELL Gold sertifikaatteja. Arvioitu valmistuminen Q2/2027.
Tilan kuvaus:
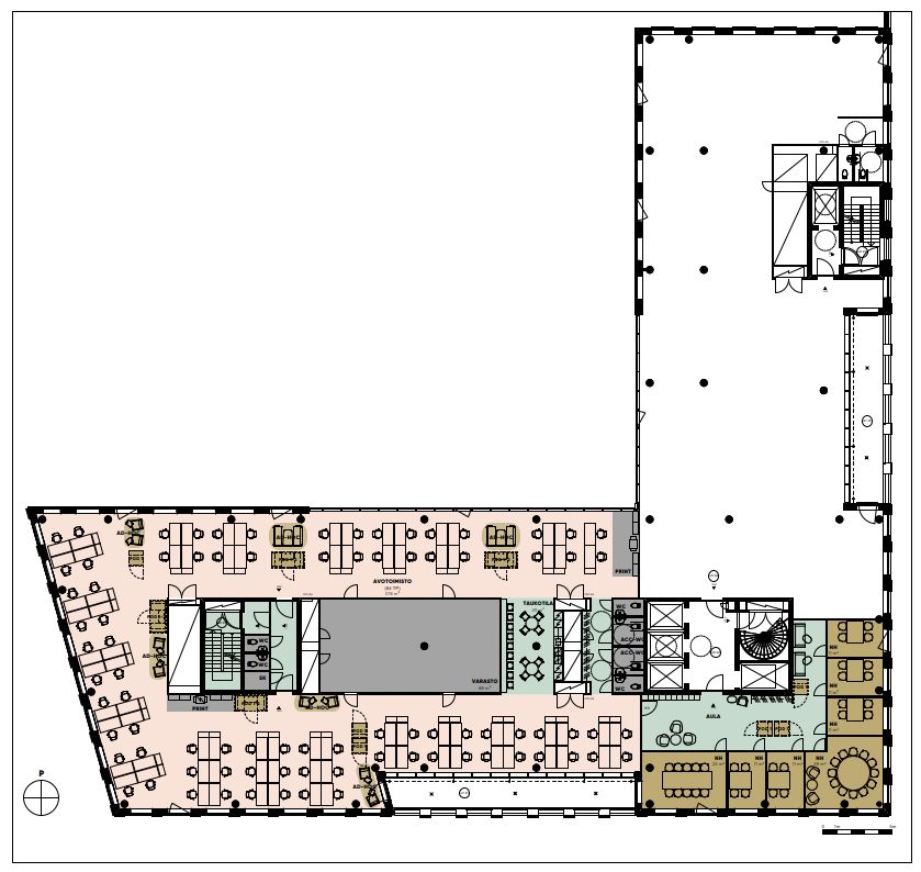
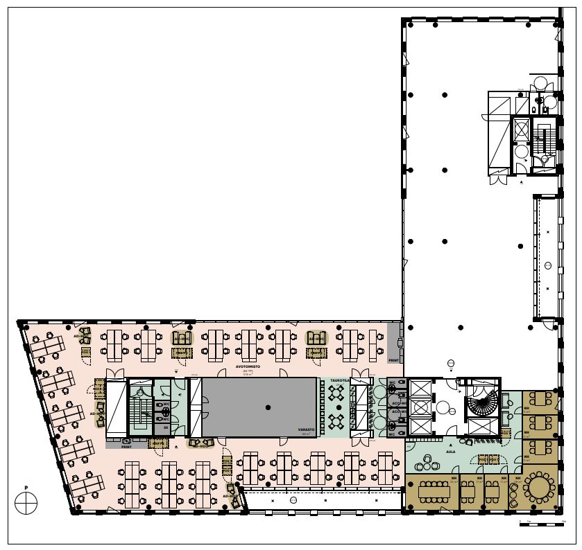
Firdossa yhdistyy erinomaisen keskeinen ja saavutettava sijainti, uusi ja moderni työympäristö kattavine palveluineen sekä vastuulliset ja työhyvinvointia tukevat työtilat. Firdosta on saatavilla erikokoisia tilaratkaisuja vuokralaisen tarpeisiin räätälöitynä, kerrosten 4-10 kerrospohjan ollessa n. 1620 m2. Pohjakuvassa esimerkkinä tilaistutus 955 m2 toimistolle.
Kerros: 4-10
