Vuokrataan toimistotilat - Helsinki
Mäkelänkatu 87, Käpylä, 00610 Helsinki #10816454
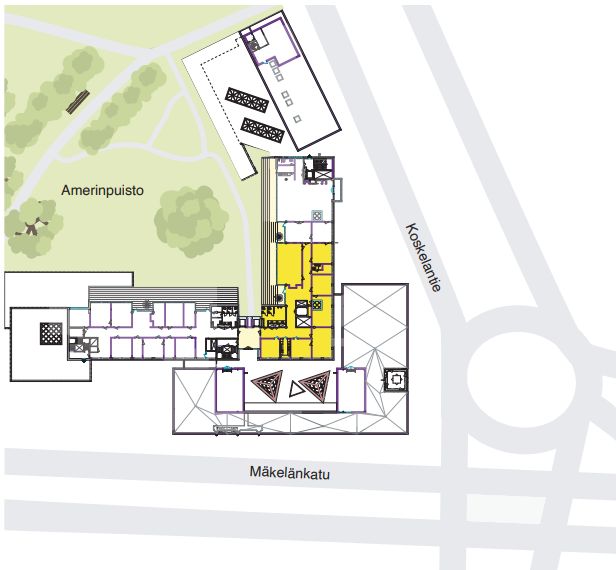
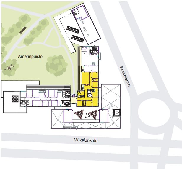
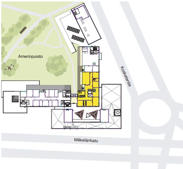
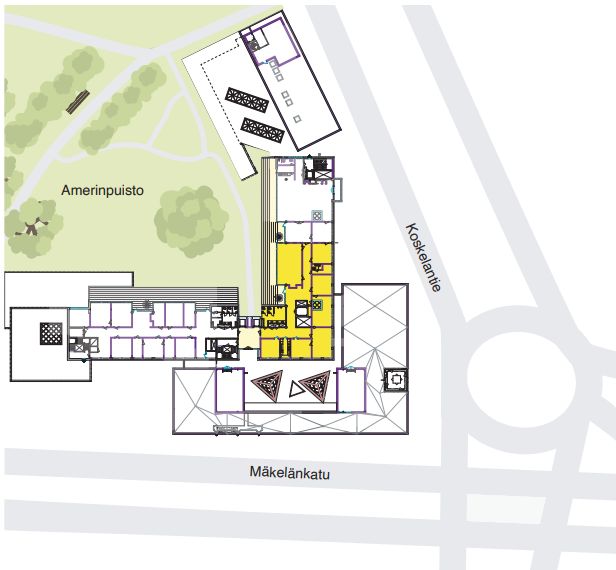
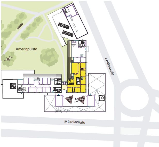
Rakennuksen kuvaus:
Käpylä 87 on viihtyisä liike- ja toimistokeskus Käpylässä Mäkelänkadun ja Koskelantien risteyksessä näkyvällä paikalla. Toimistot sijaitsevat kerroksissa 2.-4. ja 1. kerroksessa on kauppojen, kahvilan ja palveluyrittäjien lisäksi laadukasta neuvottelutilaa talon toimistokäyttäjille. Kiinteistö rakennettiin alun perin 1980-luvulla Amer-yhtymän pääkonttoriksi ja se näkyy laadukkaina materiaaleina sekä toimivina ja persoonallisina tiloina. Kellarikerroksessa on yli sadan paikan parkkihalli ja ulkona on lisäksi asiakasparkkipaikkoja. Kellarikerroksissa on myös varastotilaa. Mäkelänkadulta on hyvät liikenneyhteydet bussilla ja ratikalla keskustaan ja Pasilaan.
Tilan kuvaus:
Vuokrattavana terassillinen toimistotilaa rakennuksen neljännessä kerroksessa. Nykymuodossaan tila koostuu sekä huone- että avotilasta, mutta tilaa on mahdollista räätälöidä uuden käyttäjän tilatarpeisiin. Tila on valoisa ja siinä on oma todella iso kattoterassi sisäpihan suuntaan.
Mäkelänkatu 87 sijaitsee Käpylässä, Mäkelänkadun ja Koskelantien risteyksessä, jossa raitiovaunu ja bussiyhteydet kulkevat kiinteistön välittömässä läheisyydessä.
Kerros: 4
