Vuokrataan toimistotilat - Helsinki
Tammasaarenkatu 7 htc vega, Ruoholahti, keskusta, 00180 Helsinki #10816446
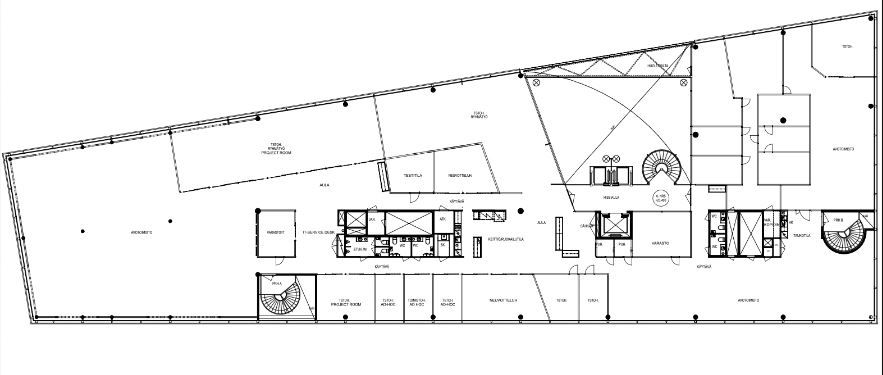
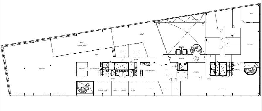
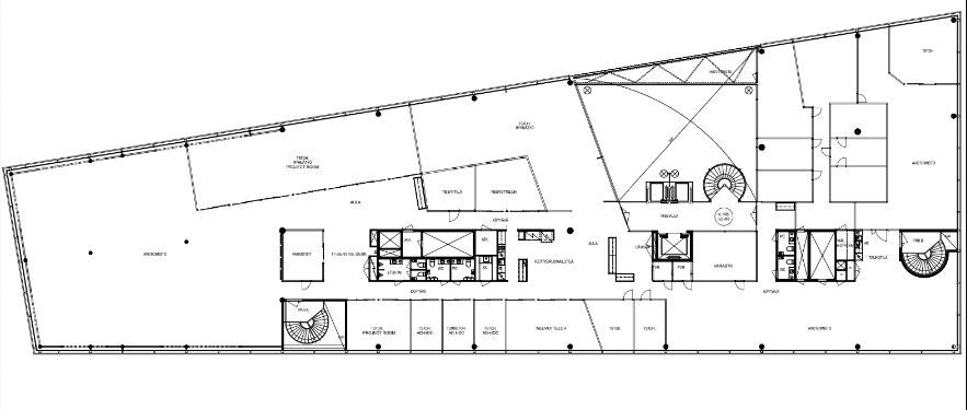
Rakennuksen kuvaus:
htc Helsinki sijaitsee hienolla paikalla meren rannalla Ruoholahdessa. Kohde on valmistunut vuonna 2001 ja koostuu viidestä rakennuksesta, joiden laadukkaat tilat tarjoavat teknisesti tasokkaan toimintaympäristön. Talossa on paljon lasia ja ilmavuutta, mikä merinäköalan kanssa luo avaruutta. Käyttäjiä palvelee aula, ravintola, kuntosali, hieronta, kosmetologi, autopesula sekä neuvottelukeskus ja saunatilat. Kohteelta on kävelymatka metrolle ja ratikkapysäkki sijaitsee aivan kohteen läheisyydessä. Polkupyörille on säilytystilat.
Tilan kuvaus:
Vapautumassa 01.01.2025 hyvää, valoisaa toimistoa merimaisemin. Hieno pääkonttorikohde meren rannalla, jossa moderni tilatekniikka ja joustavat toimistotilat.
Kerros: 6
