Vuokrataan toimistotilat - Helsinki
Pohjoisesplanadi 37, Keskusta, 00100 Helsinki #10816440
Rakennuksen kuvaus:
Pohjoisesplanadi 37 eli Halosen talo on rakennettu vuonna 1891 ja sijaitsee Esplanadilla. Kaikki keskusta-alueen monipuoliset palvelut ja yhteydet ovat lähettyvillä ja parkkihalli sijaitsee lyhyen kävelymatkan päässä Kluuvissa. Taidokkaasti saneeratussa arvokiinteistössä on tasokasta toimitilaa seitsemässä kerroksessa, plus kellaritilat. Tilat on jaettavissa toimistomoduulien mukaisiin kokonaisuuksiin, joiden huoneistomuutokset on mahdollista toteuttaa vanhan rakennuksen ehdoin. Talotekniikka on ajantasainen.
Tilan kuvaus:
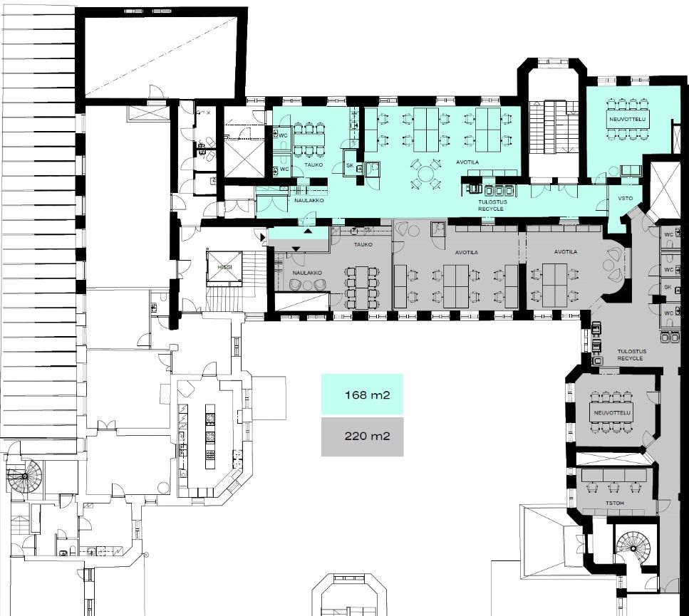
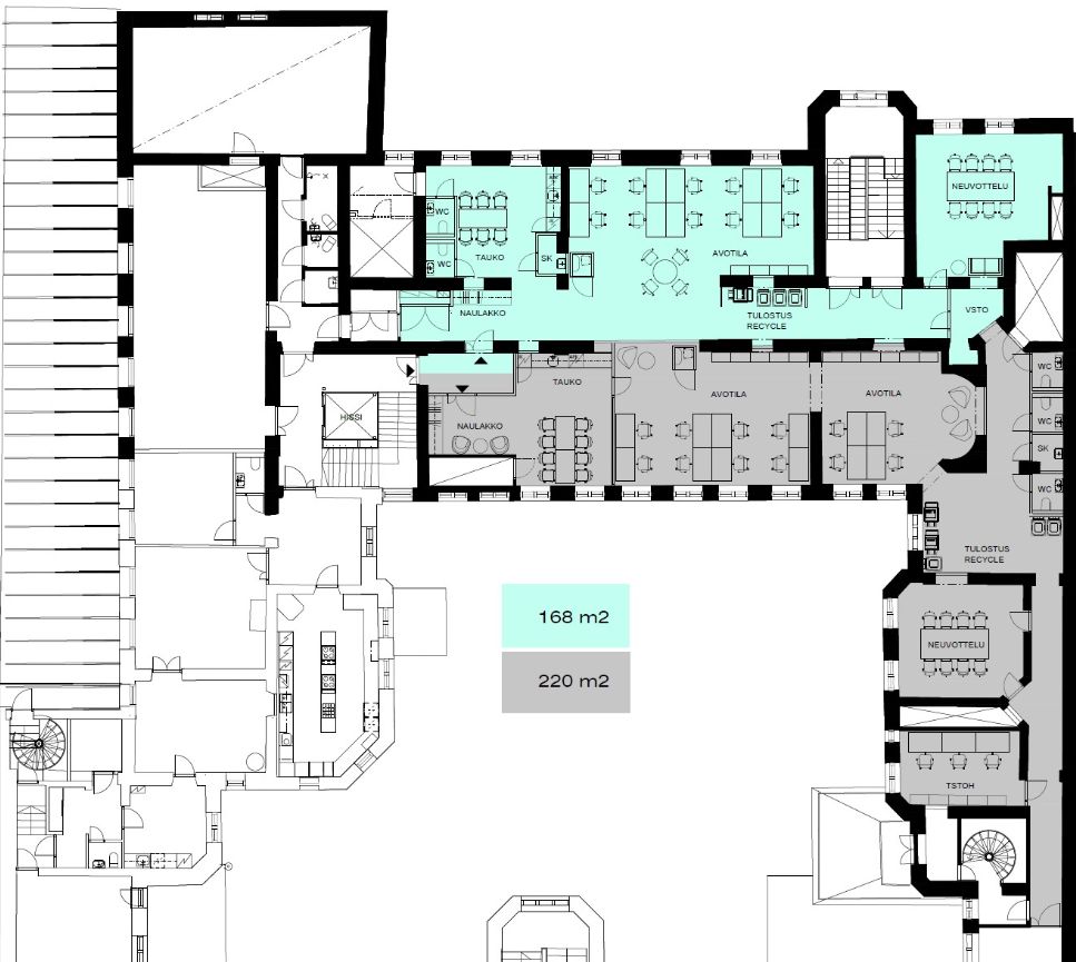
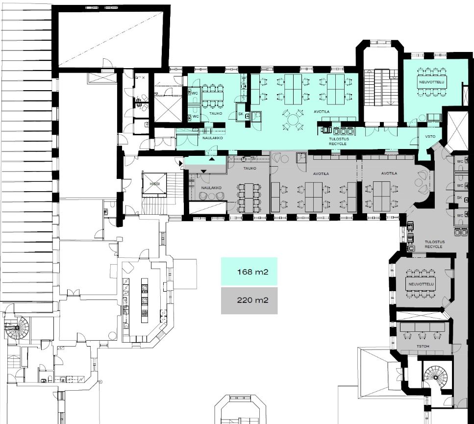
Halosen talossa vapaata tasokasta toimistotilaa neljännessä kerroksessa. Tila sijaitsee kiinteistön sisäpihan puoleisessa siivessä. Tila tullaan remontoimaan vuokralaiselle ja tilat uudistetaan tarpeisiin. Tämä tila on merkattu pohjakuvaan turkoosilla sävyllä.
Kerros: 4
