Vuokrataan toimistotilat - Helsinki
Kutomotie 16-18, Pitäjänmäki, 00380 Helsinki #10816439
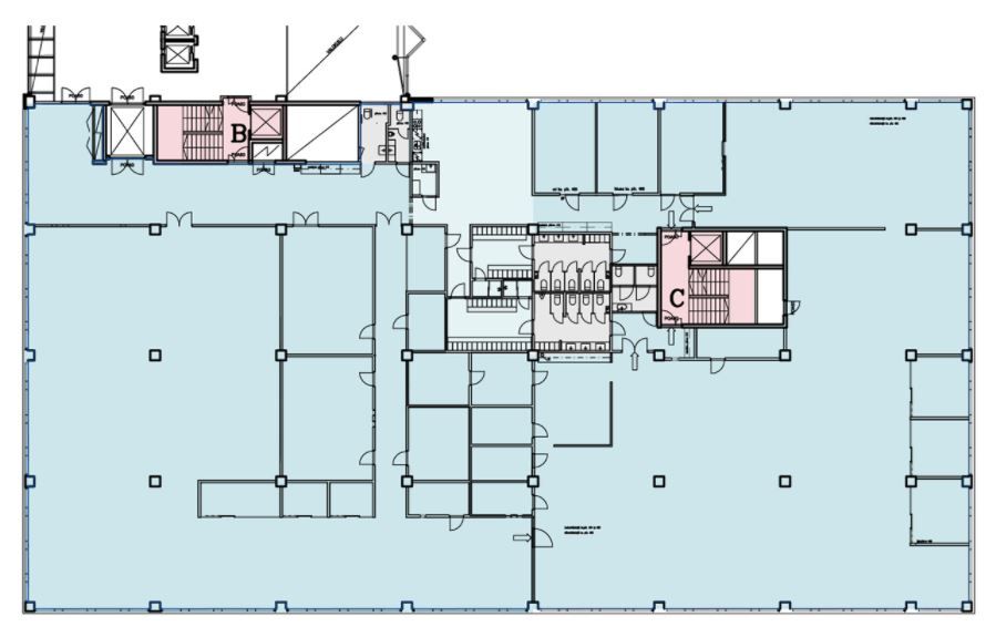
Rakennuksen kuvaus:
Kutomo Business Park tarjoaa hyväkuntoisia ja joustavia toimistotiloja niin kooltaan kuin toimialaltaankin erilaisille yrityksille. Talossa on kattavat aula- ja toimistopalvelut sisältäen mm. posti-, vastaanotto- ja puhelinvaihdepalvelut, vuokrattavat neuvottelutilat, ravintola cateringpalveluilla sekä maksuttoman kuntosalin. Kohde sijaitsee kävelyetäisyydellä Valimon juna-asemalta. Henkilöautoileville kiinteistö tarjoaa runsaasti pysäköintitilaa.
Tilan kuvaus:
Vapaana ilmastoitua toimistotilaa Kutomo Business Parkin neljännessä kerroksessa. Siisti tila monipuolisessa business parkissa. Maisemakonttorista hienot näkymät Talin golfpuistoon.
Kerros: 4
