Vuokrataan toimistotilat - Helsinki
Itämerenkatu 1, Ruoholahti, keskusta, 00180 Helsinki #10816433
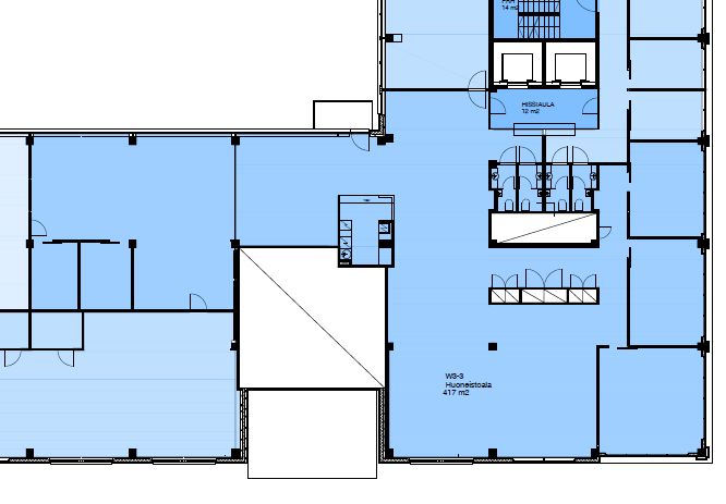
Rakennuksen kuvaus:
Ruoholahdessa sijaitseva vuonna 1998 valmistunut toimistotalo hyvien liikenneyhteyksien varrella. Lähimmälle metroasemalle on vain 350m. Kiinteistön modernilla tekniikalla varustetut tilat on helppo muokata käyttäjän toiveisiin sopiviksi. Kattokerroksesta löytyy hieno sauna- ja neuvottelutila. Lisäksi käyttäjiä palvelee aulapalvelu, uudistettu neuvottelumaailma sekä ravintola. Kellariin on sijoitettu tasokas kuntosali sekä autohalli.
Tilan kuvaus:
Korkeatasoista toimistoa viihtyisässä toimistokohteessa. Vapaat tilat uudistetaan uuden käyttäjän tarpeiden mukaisiksi ja valoisat toimistot joustaa monenlaiseen liiketoimintaan. Nykymuodossaan toimisto on pääosin avokonttoria, jonka yhteydessä neuvottelu- ja työtiloja.
Kerros: 3
