Vuokrataan liiketilat - Helsinki
Fabianinkatu 27-29, Keskusta, 00100 Helsinki #10816432
Rakennuksen kuvaus:
Menestyvä yritys tarvitsee arvoisensa puitteet. Fabianinkadun ja Espan kulma Kauppatorin, Espan puiston ja vilkkaiden kauppakatujen vieressä, tarjoaa yrityksesi liiketoiminnalle huippupaikan. Rakennus tarjoaa muunneltavaa, sisätiloiltaan täysin uudistettua, viihtyisää ja tehokasta toimistotilaa. Fabianinkatu 27 rakennettiin v. 1840 ja Fabianinkatu 29 valmistui 1965.
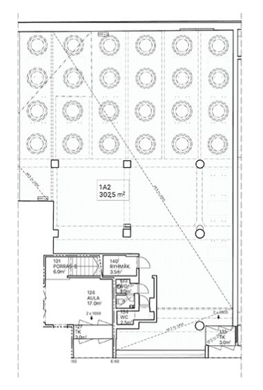
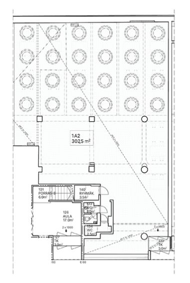
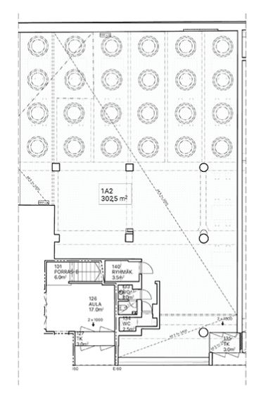
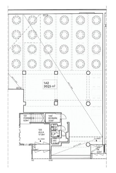
Tilan kuvaus:
Ensimmäisen kerroksen liiketila Helsingin keskustasta. Tilassa on upeita elementtejä, kuten hienot koristeelliset pylväät ja tyylikäs lattia. Tilassa on myyntitiski valmiina. Liiketila sijaitsee hyvällä sijainnilla lähellä senaatorintoria ja Esplanadin puistoa. Alueella on runsaasti jalankulkuliikennettä. Tilan vapautuminen sopimuksen mukaan.
Kerros: 1
