Vuokrataan toimistotilat - Helsinki
Merimiehenkatu 36, Punavuori, keskusta, 00150 Helsinki #10816427
Rakennuksen kuvaus:
Kokonaisen kaupunkikorttelin laajuinen maamerkki, Merikortteli, valmistui 1920-luvulla puhelinkaapelitehtaaksi. Nykyisin kulttuurihistoriallisesti arvokas talo tarjoaa industrial-henkistä toimistotilaa upeine korkeine huoneineen ja isoine tehdasikkunoineen. Tehdashistoriasta muistuttaa useampi tavarahissi. Toimitilojen lisäksi kiinteistössä on jonkin verran liike- sekä varastotilaa sekä laaja sisäpiha ja pysäköintihalli. Talo sijaitsee lähellä merta Punavuoren sydämessä, ratikkalinjan varrella.
Tilan kuvaus:
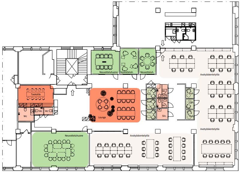
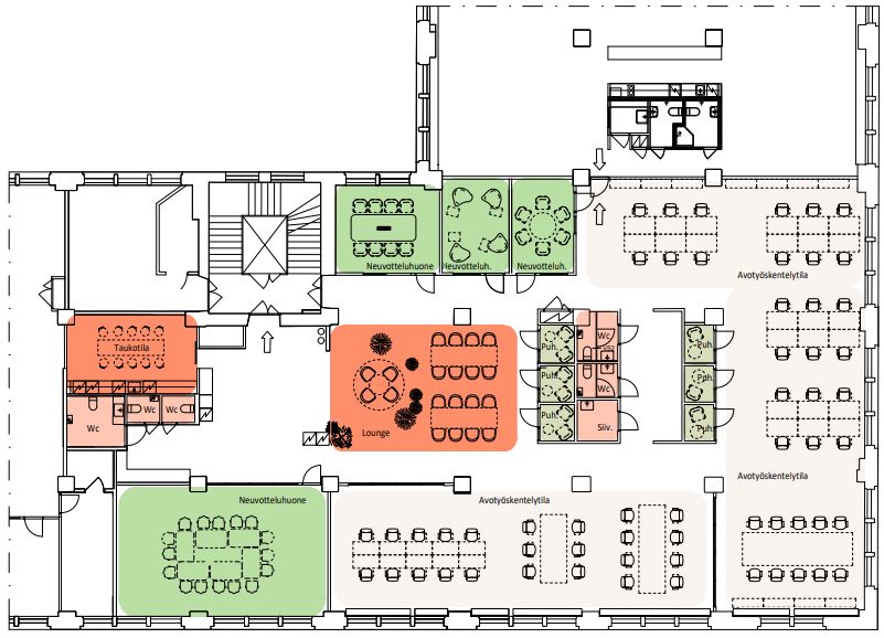
3. kerroksen muuntojoustava, avara ja valoisa kulmatoimisto, joka räätälöidään vuokralaisen toiveiden mukaiseksi.
Kerros: 3
Osoite
Merimiehenkatu 36, 00150 Helsinki
Tilatyyppi
Toimistotilaa
623 m2
Vapautuu
Heti vapaa
Ota yhteyttä
Pyydä lisätietoa
