Vuokrataan toimistotilat - Helsinki
Hämeentie 19, Sörnäinen, 00500 Helsinki #10816425
Rakennuksen kuvaus:
Näyttävä, vuonna 1933 valmistunut rakennus on vilkkaan Hämeentien maamerkkejä. Persoonallinen talo on saneerattu vuosina 2000 sekä 2009-2010 ja tilat ovat nykykäyttöön sopivat. Tiloissa on koneellinen ilmanvaihto, jäähdytys sekä CAT6-tason kaapelointi kuituyhteydellä. Rakennuksen tarjoamat toimistotilat voidaan toteuttaa uuden vuokralaisen toiveita vastaaviksi. Kiinteistön pääaulassa toimii aulapalvelu ja talossa on ravintola, kokoustilat, catering sekä oma autohalli. Sörnäisten metroasema sijaitsee 200m päässä.
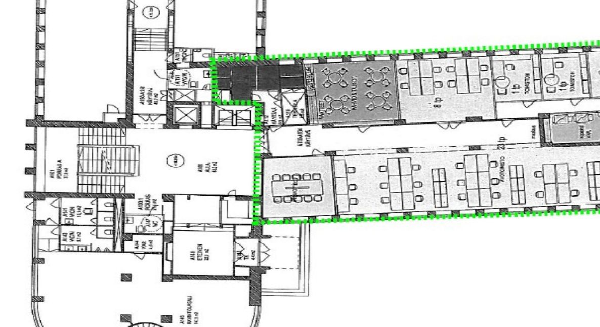
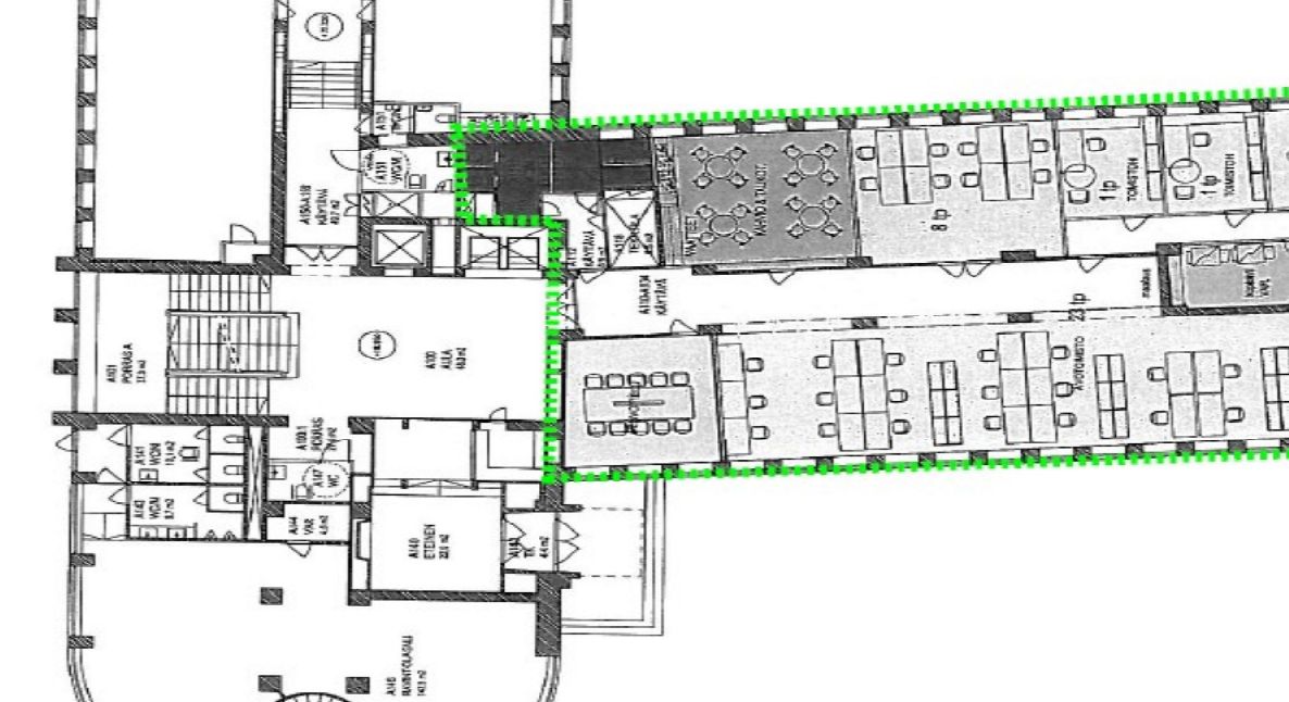
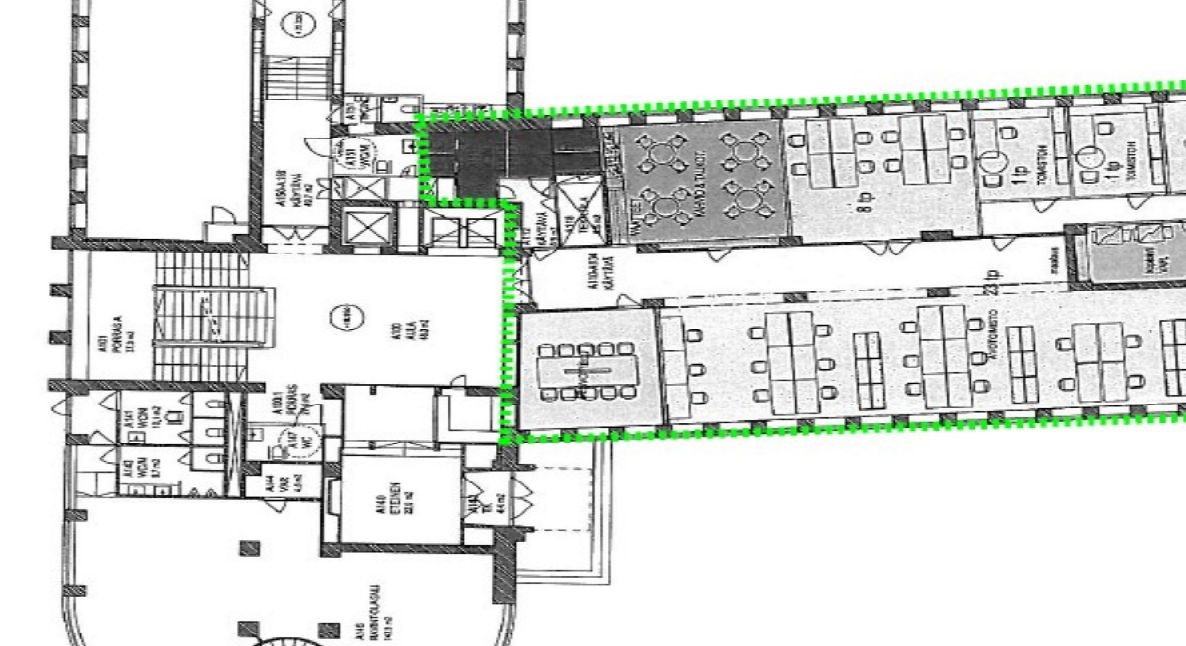
Tilan kuvaus:
Vapaana ensimmäisen kerroksen toimistotila, jossa mahdollista toteuttaa muutostöitä vuokralaisen tarpeiden mukaan. Nykyisellään tila on yhdistelmä avo- ja huonekonttoria. Isot ikkunat tilan molemmilla puolin.
Kerros: 1
