Vuokrataan toimistotilat - Helsinki
Urho kekkosen katu 3-7 trigora, Kamppi, keskusta, 00100 Helsinki #10816418
Rakennuksen kuvaus:
Trigora on suosittu toimistokohde Kampin kauppakeskuksen ohessa. Sen nykyaikaiset tietoliikenneyhteydet, jäähdyttävä ilmastointi sekä päivänvalosäätö luovat hyvät työskentelyolosuhteet. Toimitilat ovat mitoitettavissa ja ryhmiteltävissä eri toimintojen ehdoilla, sillä Trigorassa rakenteelliset seikat eivät säätele toimintojen sijoittamista. Kampin kauppakeskus tarjoaa vuokralaisille erinomaiset liikenneyhteydet ja monipuoliset palvelut saman katon alta.
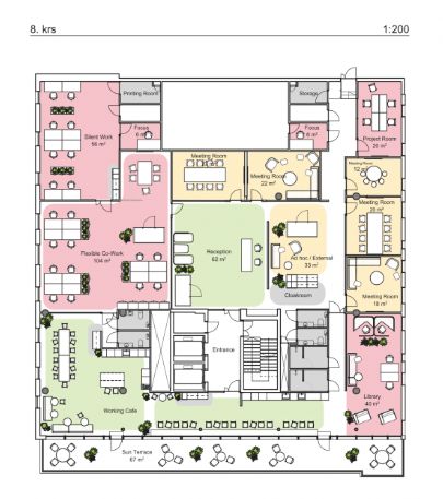
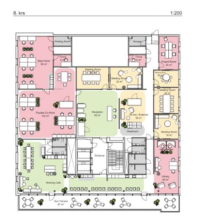
Tilan kuvaus:
Vapautumassa hyvässä kunnossa oleva moderni toimistotila Trigoran Urhontornin kahdeksannesta kerroksesta. Tilat ovat joustavasti muunneltavissa vuokralaisen toiveiden mukaisiksi ja tilassa onnnistuu avotilan lisäksin huoneet sekä vetäytymistilat. Sellaisenaankin käyttövalmis tila.
Kerros: 8
