Vuokrataan toimistotilat - Helsinki
Työpajankatu 10, Kalasatama, 00580 Helsinki #10816403
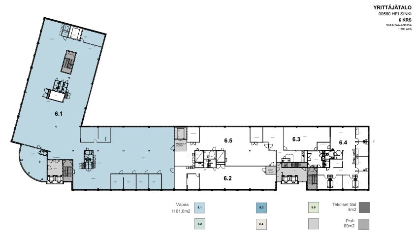
Rakennuksen kuvaus:
Vuonna 1990 rakennettu toimistokiinteistö Yrittäjätalo on huippusijainnilla kehittyvän Kalasataman ytimessä. Rakennuksessa on seitsemän kerrosta toimistotilaa sekä upea lounasravintola Kattohaikara rakennuksen kattoterassilla. Ylimmistä kerroksista avautuu kauniit merinäköalat. Sijaintia luonnehtivat erinomaiset liikenneyhteydet ja palvelut; Kalasataman metroasema ja Redi ovat noin 100 metrin päässä.
Tilan kuvaus:
Vapaata tilaa talon ylimmässä kerroksessa. Tähän tilaan on tavarahissiyhteys, joten se soveltuu toimistokäytön lisäksi myös showroomiksi tai varastointiin. Tilassa on runsaasti avotilaa sekä muutama huone. Sisääntulon kohdalta tila on erityisen korkeaa. Tilassa on uudehko keittiö, epoksimaalattu lattia, uusittu valaistus ja wc:t.
Kerros: 6
