Vuokrataan toimistotilat - Helsinki
Työpajankatu 10, Kalasatama, 00580 Helsinki #10816401
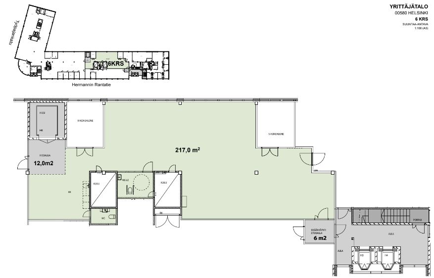
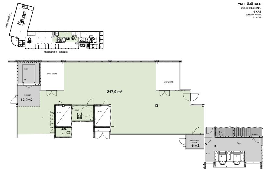
Rakennuksen kuvaus:
Vuonna 1990 rakennettu toimistokiinteistö Yrittäjätalo on huippusijainnilla kehittyvän Kalasataman ytimessä. Rakennuksessa on seitsemän kerrosta toimistotilaa sekä upea lounasravintola Kattohaikara rakennuksen kattoterassilla. Ylimmistä kerroksista avautuu kauniit merinäköalat. Sijaintia luonnehtivat erinomaiset liikenneyhteydet ja palvelut; Kalasataman metroasema ja Redi ovat noin 100 metrin päässä.
Tilan kuvaus:
Vapaata toimistotilaa talon ylimmässä kerroksessa, johon tulee tavarahissi. Tilankäyttö ja osa pintamateriaaleista toteutetaan vuokralaisen tarpeiden mukaan, ja tilassa on uusittu valaistus sekä wc:t. Tila on mahdollista vuokrata myös varastotilaksi tavarahissiyhteyden ja sisäpihan lastauslaiturin ansiosta.
Kerros: 6
