Vuokrataan toimistotilat - Helsinki
Keskuskatu 1 b, Keskusta, 00100 Helsinki #10816381
Rakennuksen kuvaus:
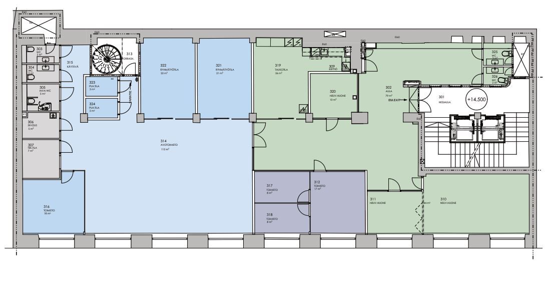
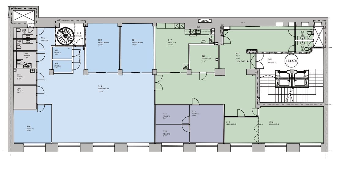
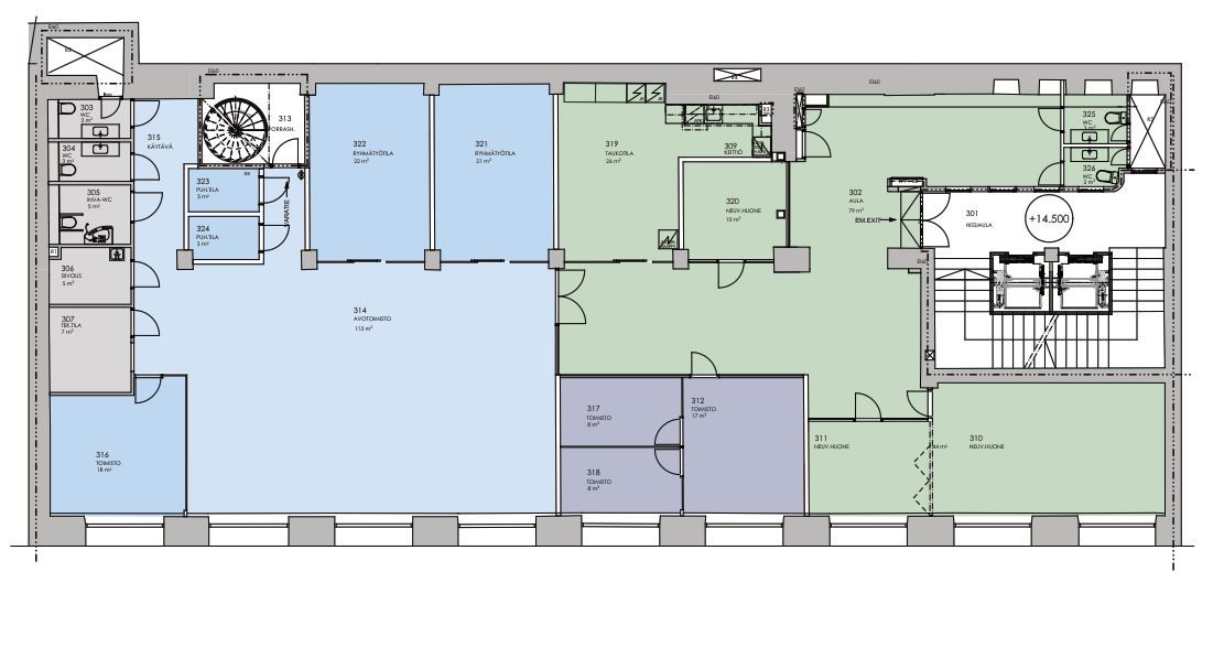
Keskuskatu 1 B on vuonna 1921 valmistunut arvokiinteistö huippusijainnilla Stockmannin tavarataloa vastapäätä. Kohteessa on toteutettu kattava peruskorjaus vuosina 2014-2015, minkä myötä kaikki tilat on modernisoitu uutta vastaaviksi. Kerrosten koot vaihtelevat 411m2-436m2 välillä ja tilat taipuvat käyttäjiensä tarpeisiin.
Tilan kuvaus:
Vuokrataan monipuolinen, tyylikkäästi sisustettu ja valoisa toimistotila Helsingin ydinkeskustasta. Tilassa on suuret ikkunat ja näkymä Stockmann-tavaratalon suuntaan. Toimisto koostuu avotilasta sekä erillisistä toimistohuoneita. Lisäksi tilassa on puhelinhuoneita, neuvottelutiloja, henkilökunta- ja asiakas wc:t sekä siisti ja edustava aula. Tilavassa taukotilassa on avokeittiö.
Kerros: 3
