Vuokrataan toimistotilat - Helsinki
Paciuksenkatu 21, Meilahti, 00270 Helsinki #10816361
Rakennuksen kuvaus:
Edustava, vuonna 2002 valmistunut Fokus-toimistokiinteistö näkyvällä paikalla Paciuksenkadun varrella Meilahdessa. Rakennuksen tehokkaat sekä modernit toimitilat tarjoavat toimivan ja rauhallisen työympäristön. Kiinteistössä on oma parkkihalli ja kattavasti palveluja, kuten vastaanotto ja henkilöstöravintola.
Tilan kuvaus:
Toimistotilat ovat valoisia ja näkymät Vanhaan Meilahteen vihreät ja merelliset taas Huopalahden puolelle. Tiloista saa helposti muokattua nykyvaatimukset täyttävää hybriditilaa että tiivistäkin huonekonttoria.
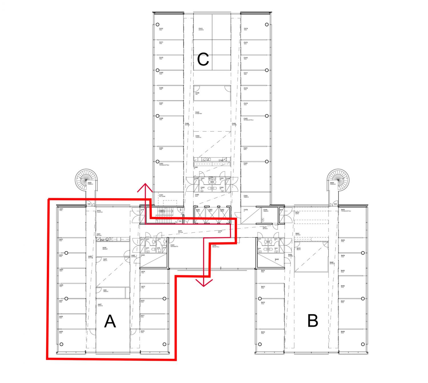
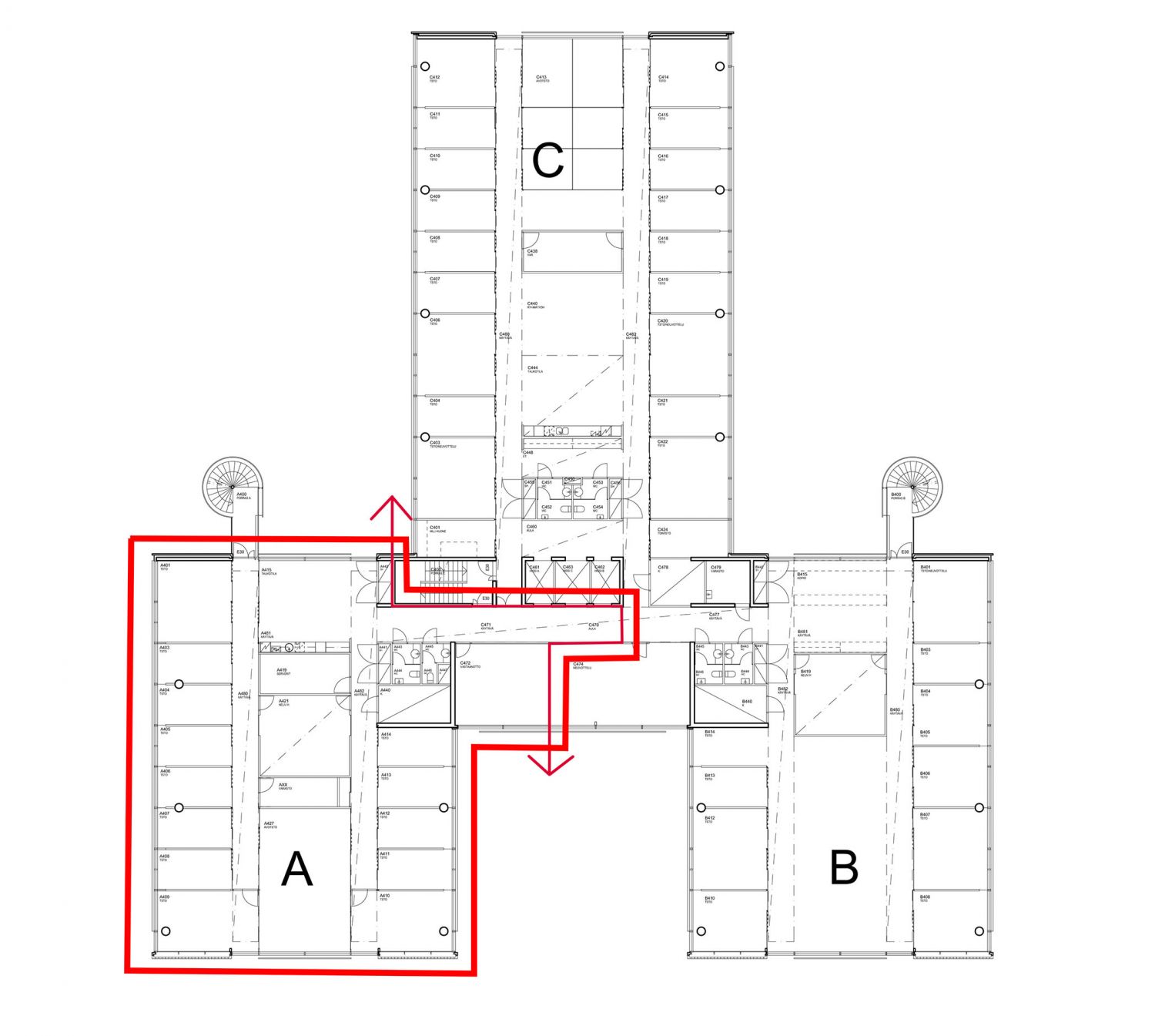
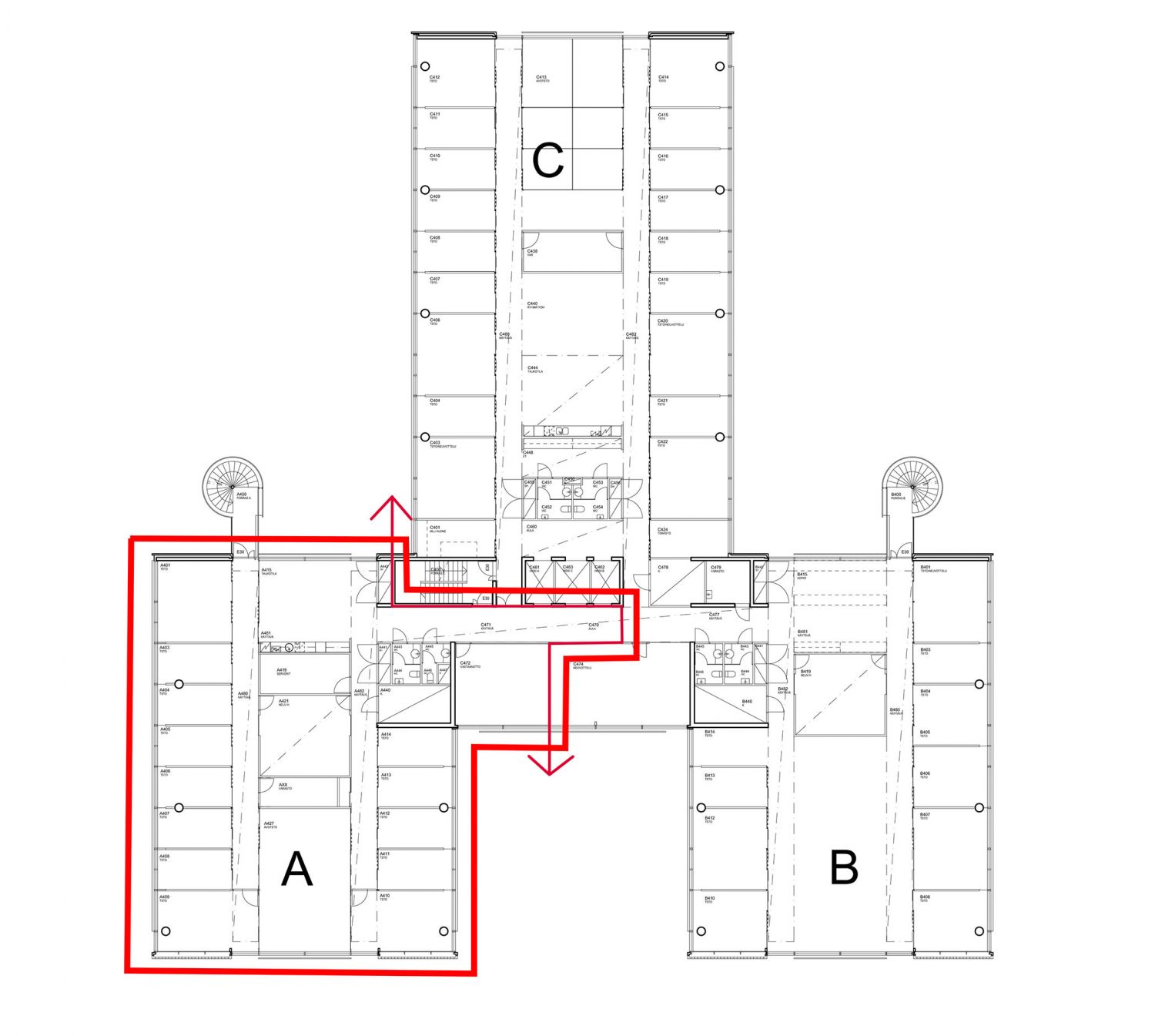
Kerros: 4
Osoite
Paciuksenkatu 21, 00270 Helsinki
Tilatyyppi
Toimistotilaa
415 m2
Vapautuu
Heti vapaa
Ota yhteyttä
Pyydä lisätietoa
