Vuokrataan toimistotilat - Helsinki
Aleksanterinkatu 46, Kluuvi, keskusta, 00100 Helsinki #10816359
Rakennuksen kuvaus:
Tämä 1892 valmistunut arvokiinteistö valmistui jatkoksi vuoden 1888 naapurirakennukselle Pohjoiseplanadi 35:n ja Mikonkadun kulmassa. Yhdessä kiinteistöt muodostavat Vanhan Kauppakujan. Aleksanterinkatu 46:een on toteutettu vuonna 2016 valmistunut peruskorjaus, jonka yhteydessä kiinteistön tilat on modernisoitiin vastaamaan nykyaikaisia vaatimuksia. Keskustan kohde on helposti saavutettava ja taloa ympäröi monipuoliset palvelut. Kluuvissa sijaitsee lähin pysäköintihalli.
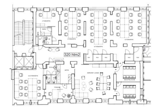
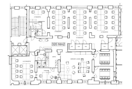
Tilan kuvaus:
Gasellikorttelissa 3. kerroksen korkea ja valoisa toimistotila. Aleksanterinkadun ja Mikonkadun kulmassa sijaitseva kiinteistö tarjoaa laadukkaita ja joustavia toimistotiloja vuokralaisen tarpeisiin.
Kerros: 3
