Vuokrataan toimistotilat - Espoo
Keilasatama 5, Keilaniemi, 02150 Espoo #10816358
Rakennuksen kuvaus:
Moderni rakennus merellisessä Keilaniemessä. Talossa on korkeatasoinen teknologia, sisältäen mm. julkisivukaihtimet, varavoimajärjestelmä ja ATK-konesali, sekä tiloissa on laaja muuntojoustavuus eri työskentelytapoihin. Saatavissa myös korkeatasoiset kalusteet kilpailukykyiseen hintaan. Palveluja runsaasti: neuvottelukeskus tarjoiluineen, aula, sisäverkko, kulunvalvonta, kuntosali/sauna sekä mm. postinkäsittely, puhelinvaihde, juoma-automaatit. Parkkipaikkoja kannella ja hallissa. Metroasemalle vain lyhyt kävelymatka.
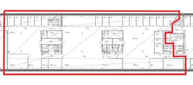
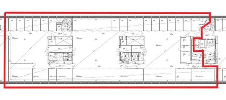
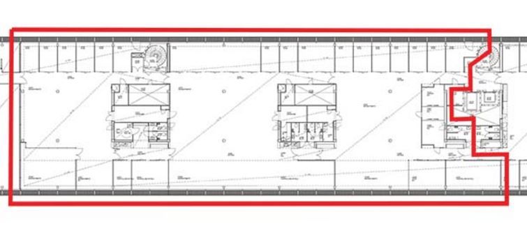
Tilan kuvaus:
Erittäin valoisa toimistotila kolmannessa kerroksessa modernissa Keilaniemen ympäristössä. Vuokrattavasta tilasta voi muokata sekä avo- että kombikonttoria, uuden vuokralaisen toiveiden mukaan. Toimistorakennuksessa on tarjoilla laadukkaat ja monipuoliset business Parkin palvelut.
Kerros: 3
