Vuokrataan toimistotilat - Helsinki
Urho kekkosen katu 3-7 trigora, Kamppi, keskusta, 00100 Helsinki #10816356
Rakennuksen kuvaus:
Trigora on suosittu toimistokohde Kampin kauppakeskuksen ohessa. Sen nykyaikaiset tietoliikenneyhteydet, jäähdyttävä ilmastointi sekä päivänvalosäätö luovat hyvät työskentelyolosuhteet. Toimitilat ovat mitoitettavissa ja ryhmiteltävissä eri toimintojen ehdoilla, sillä Trigorassa rakenteelliset seikat eivät säätele toimintojen sijoittamista. Kampin kauppakeskus tarjoaa vuokralaisille erinomaiset liikenneyhteydet ja monipuoliset palvelut saman katon alta.
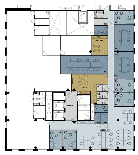
Tilan kuvaus:
Vapaana persoonallista ja edustavaa toimistotilaa Kampin paraatipaikalla suositun Trigoran kolmannessa kerroksessa. Iso oma 50m² terassi, josta avautuu näkymät Tennispalatsinaukiolle. Sisäkautta suora yhteys kauppakeskukseen, joten kattavat palvelut, ravintolamaailma, kaupat, julkiset kulkuvälineet ja parkkihallit ovat välittömässä läheisyydessä.
Kerros: 5
