Vuokrataan toimistotilat - Helsinki
Eteläranta 14, Keskusta, 00130 Helsinki #10816353
Rakennuksen kuvaus:
Historiallisesti arvokas kiinteistö sijaitsee Kauppatorin vieressä, Wanhaa Kauppahallia vastapäätä, loistavalla paikalla palveluiden ympäröimänä. Ympäristössä useita Helsingin huippuravintoloita vain kävelyetäisyydellä. Läheisyydessä henkilöautoileville parkkitilaa Kasarmintorin pysäköintihallissa ja rannassa löytyy myös iso pysäköintialue, joka soveltuu erityisesti vieraiden käyttöön.
Tilan kuvaus:
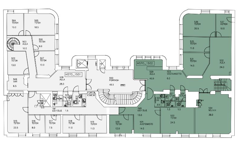
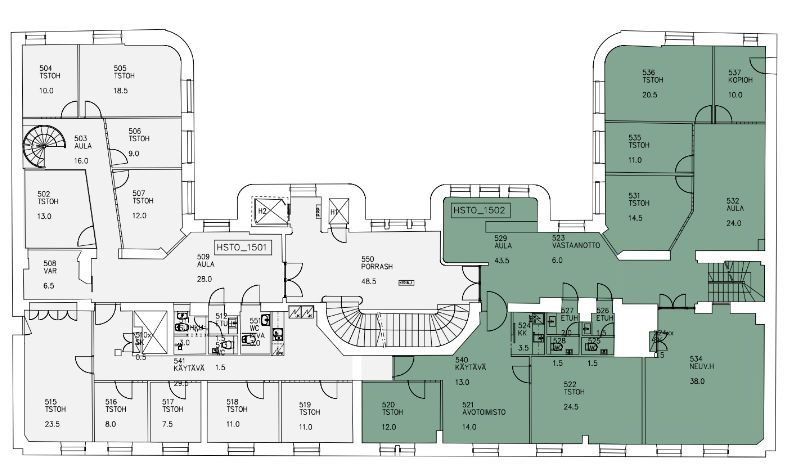
Viidennen kerroksen kulmatoimisto, josta upeat merinäköalat! Tila on huonetoimistoa ja tilaratkaisua voidaan muokata vuokralaisen tarpeiden mukaan.
Kerros: 5
Osoite
Eteläranta 14, 00130 Helsinki
Tilatyyppi
Toimistotilaa
235 m2
Vapautuu
Heti vapaa
Ota yhteyttä
Pyydä lisätietoa
