Vuokrataan toimistotilat - Espoo
Tarvonsalmenkatu 15-17 derby spurtti, Perkkaa, leppävaara, 02600 Espoo #10816351
Rakennuksen kuvaus:
Derby Business Park tarjoaa laadukasta toimitilaa Kehä 1:n ja Turunväylän varrella. Kiinteistö valmistui 2013 ja koostuu kolmesta toimistotalosta, jotka ovat toteutettu energiatehokkaasti ja innovaativisella ympäristöajattelulla. Kiinteistö onkin LEED Platinum sertifioitu. Omassa parkkihallissa on 570 parkkipaikkaa, autopesupalvelu ja pihalla on ilmaisia sähköautonlatauspaikkoja. Kiinteistö tarjoaa hyvät business parkin palvelut; mm. aulan, kokoustilat, ravintolan, kuntosalin, pyöräparkin sekä suihkut.
Tilan kuvaus:
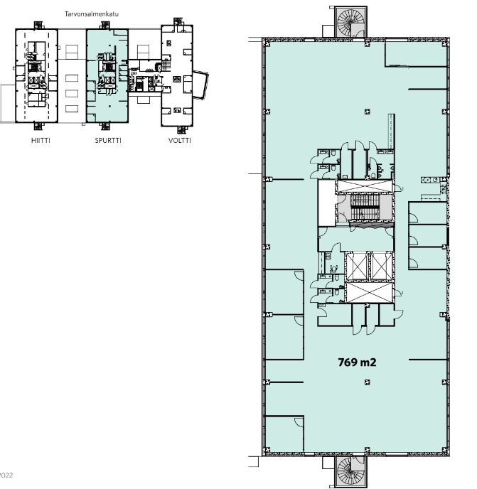
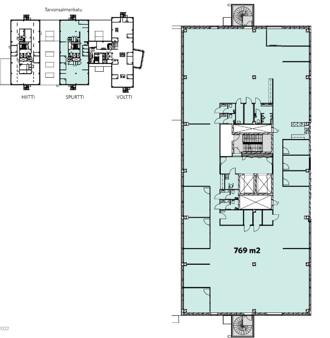
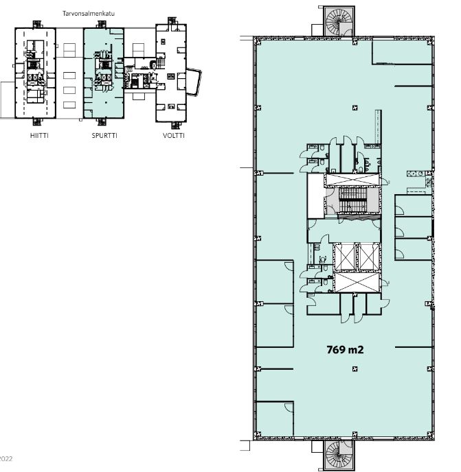
Vuokrataan koko neljännen kerroksen kattava toimistotila, josta hienot näkymät. Tilaa on mahdollista muunnella tai jakaa käyttäjän tarpeiden mukaan. Neljä sisäänkäyntiä mahdollistavat tilan jakamisen pienempiin kokonaisuuksiin.
Kerros: 4
