Vuokrataan toimistotilat - Helsinki
Dagmarinkatu 6, Etu-töölö, keskusta, 00100 Helsinki #10816346
Rakennuksen kuvaus:
Sympaattinen helmi Töölön sydämessä. Dagmarinkatu 6 on Lars Sonckin suunnittelema, vuonna 1924 rakennettu punatiilinen, julkisivultaan kaunis toimistokiinteistö, joka on kokonaan vuokrattavissa yhdelle tai useammalle vuokralaiselle. Kiinteistö on peruskorjattu vuonna 2021 moderniin toimistokäyttöön ja on toteutettu viihtyisiksi, inspiroiviksi työtiloiksi. Sijainti on rauhallinen, mutta liikenteellisesti kätevä, alle 10 minuutin kävelymatkan päässä Kampin keskukselta ja metrolta. Talossa on sauna, suihkut ja pukukaapit vuokralaisille.
Parkkipaikkoja löytyy hallista ja pihalta.
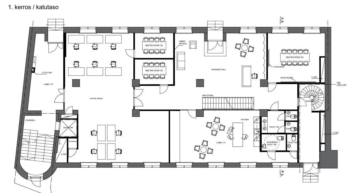
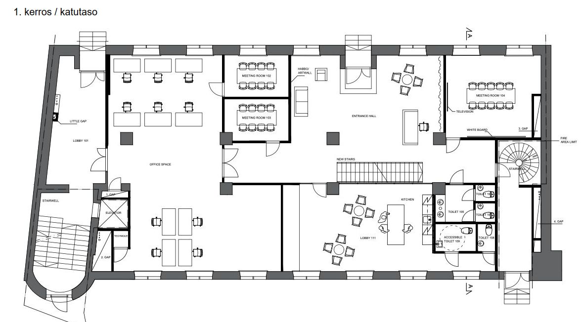
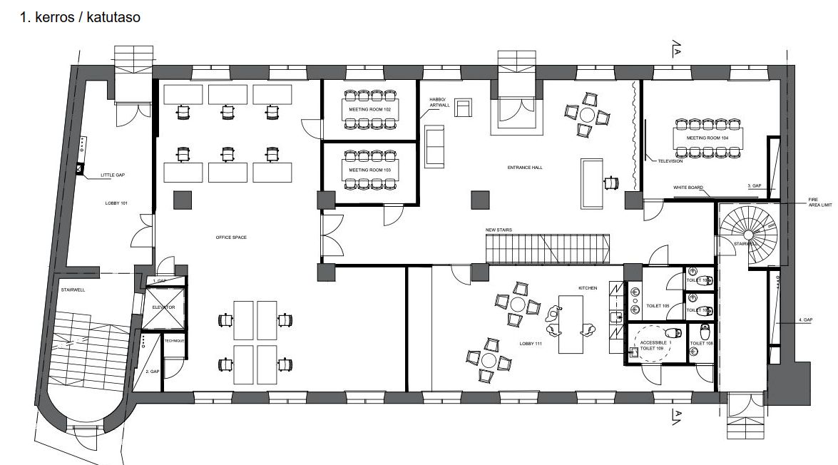
Tilan kuvaus:
Oma talo erittäin kivasti toteutettua, muuttovalmista toimistotilaa viihtyisällä sijainnilla Töölössä! Kerroskoko on noin 350 m2 ja K-kerroksessa on toimistotilaa noin 150 m2. Kellarikerros on nykyisen vuokralaisen showroom/seminaaritilana sekä pelihuoneena. Lisäksi kerroksessa on sauna, suihkut ja pukuhuonetilat. Katutasossa on sisäänkäynti ja mahdollisuus asiakkaiden vastaanottoon. Sisäänkäynnin yhteyteen on toteutettu avara aula sekä kolme suurempaa neuvotteluhuonetta ja keittiö. Lisäksi kerroksessa on noin 100 m2 avotoimistotilaa. Kerrokset 2. ja 3. ovat tasokasta ja persoonallista monitilatoimistoa, ja kerrokset 4.-6. vielä käyttönottoa odottavaa, saneerattua toimistotilaa. Kerroksien K-3. välillä on sisäportaat. Oheiset valokuvat ovat tiloista niiden nykymuodossa.
Kerros: koko talo
