Vuokrataan toimistotilat - Espoo
Linnoitustie 5 harmonia, Leppävaara, 02600 Espoo #10816335
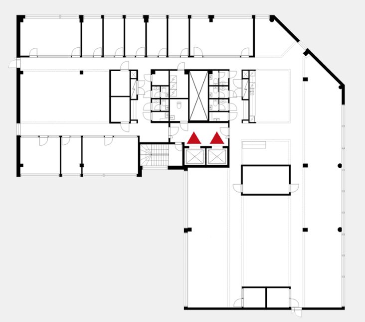
Rakennuksen kuvaus:
Quartetto on yhdeksän toimistorakennuksen kampus vuosilta 2001-2003 ja 2009-2012. Harmonia-talo on 1. vaiheesta. Korkeatasoinen Quartetto sijaitsee lähellä Turunväylän ja Kehä I:n liittymää, josta on kävelyetäisyys juna-asemalle ja kauppakeskus Selloon. Sijainnille on hyvät pyöräily-yhteydet ja talossa on pyöräsäilytys sekä suihkut ja pukuhuoneet. Parkkitilaa on hallissa ja pihalla. Palvelut ovat monipuoliset: aula, kokouskeskus, ravintola, kahvio, edustussauna ja liikunta- sekä hyvinvointipalvelut, plus oma kiinteistön intranet.
Tilan kuvaus:
Vapaana koko kolmas kerros siistissä ja muuntautuvassa Harmonia-talossa. Business Park-palvelut tukevat vuokralaista ja tilat räätälöidään vuokralaiselle. Kohde tarjoaa viihtyisän ja laadukkaan työympäristön.
Kerros: 3
