Vuokrataan toimistotilat - Helsinki
Porkkalankatu 7, Ruoholahti, keskusta, 00180 Helsinki #10816332
Rakennuksen kuvaus:
Salmisaaren liiketalo sijaitsee Ruoholahden keskiössä, Porkkalankadun ja Salmisaarenkadun risteyksessä. Kiinteistölle on suora yhteys Länsiväylältä ja metrolle on lyhyt kävelymatka. Kiinteistöllä on oma pysäköintilaitos. Talon vieressä sijaitsevasta Ruoholahden kauppakeskuksesta löytyvät kaikki päivittäiset palvelut.Toimitilat ovat tehokkaita ja saneerattuja vastaten nykyajan toimistotyön vaatimuksiin.
Tilan kuvaus:
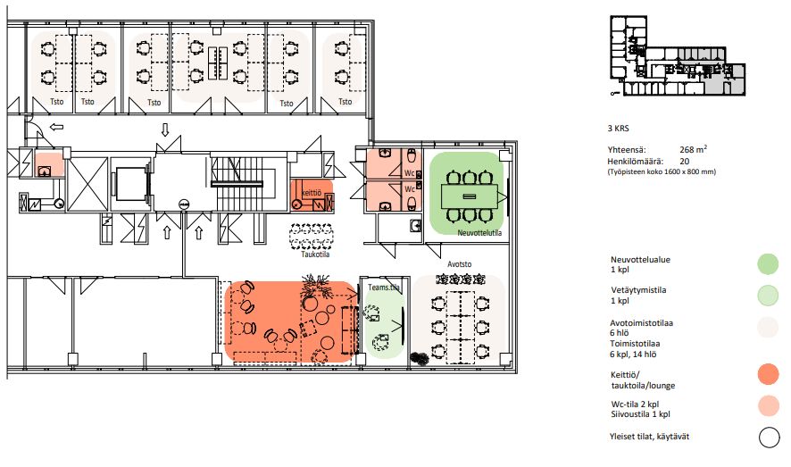
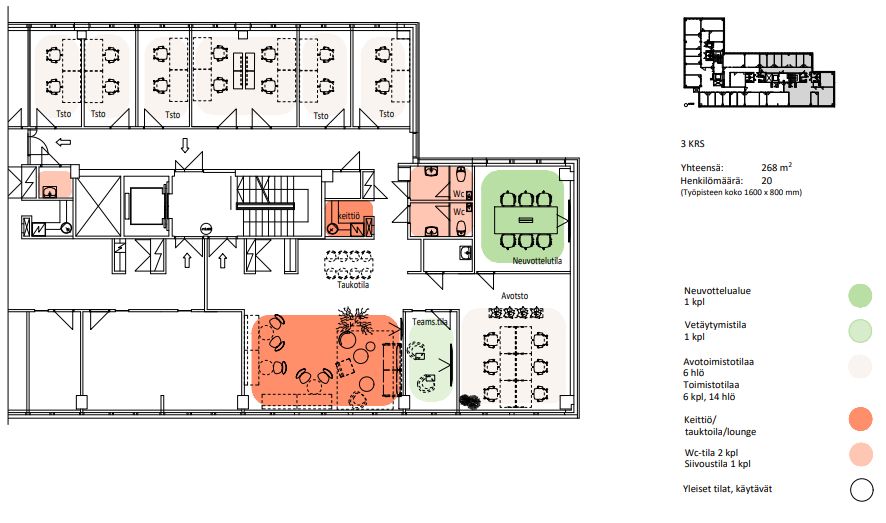
Vapaana kolmannen kerroksen tila. Valoisassa tilassa on ikkunat molemmin puolin ja työpisteet on mahdollista istuttaa valon ääreen ikkunaseinille. Oheisen pohjakuvan tilankäyttö on esimerkki ja vuokralainen pääsee itse vaikuttamaan tilan layoutiin sekä pintamateriaalivalintoihin.
Kerros: 3
