Vuokrataan toimistotilat - Helsinki
Lintulahdenkatu 10, Sörnäinen, 00500 Helsinki #10816324
Rakennuksen kuvaus:
Lintulahdenkulma on ns. tiiliklassismia edustava rakennus 1920-luvulta. Se valmistui alun perin keskusvarastoksi ja on nykyisin kulttuurihistoriallisesti arvokas toimistokohde, jonka saneeratut tilat ovat tyylikkäät sekä nykyaikaiset. Kaksisiipisessä rakennuksessa on yhdeksän kerrosta ja ullakko. Talossa toimii lounasravintola, aulapalvelu sekä edustustilat, joissa kokouskeskus ja sauna. Talo sijaitsee kävelymatkan päässä Sörnäisten metroasemalta ja useiden bussi- ja ratikkalinjojen varrella.
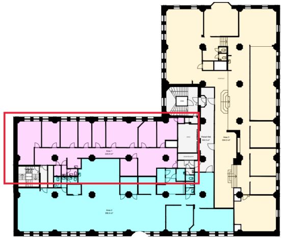
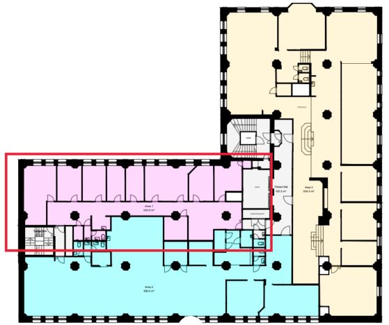
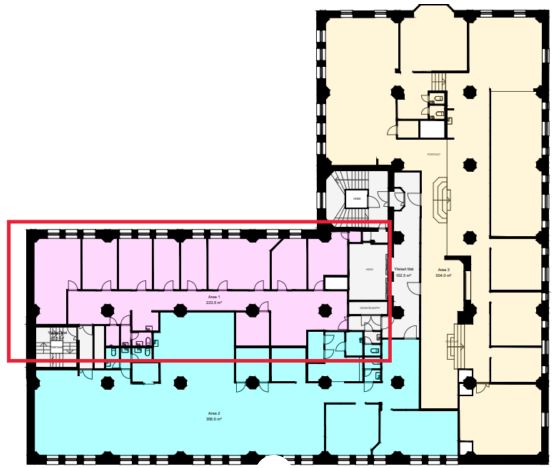
Tilan kuvaus:
Arvokkaan oloinen, tyylikkäästi uudistettu toimistotalo näkyvällä paikalla Sörnäisten Rantatien tuntumassa. Kompakti toimistotila toisessa kerroksessa. Viihtyisä ja vaikuttava työympäristö. Edustus- ja kokoustilat ylimmässä ullakkokerroksessa, lounasravintola ensimmäisessä kerroksessa.
Kerros: 2
