Vuokrataan toimistotilat - Helsinki
Kaarlenkatu 9-11, Kallio, 00530 Helsinki #10816323
Rakennuksen kuvaus:
Viihtyisää toimistotilaa uniikilla sijainnilla Kallion sydämessä. Tämä kohde muodostuu kahdesta vierekkäisestä rakennuksesta, jotka yhdessä muodostavat K9:n kokonaisuuden monine palveluineen. Kohteella on mm. aulapalvelu, neuvotteluhuoneita, sauna edustustiloineen sekä iso tapahtumatila terassilla. Lisäksi talossa toimii ravintola. Tunnelmallinen kiinteistö, josta vuokralainen saa tarvitsemansa tehokkaat, tyylikkäät tilat sekä vuokralaispalvelut.
Tilan kuvaus:
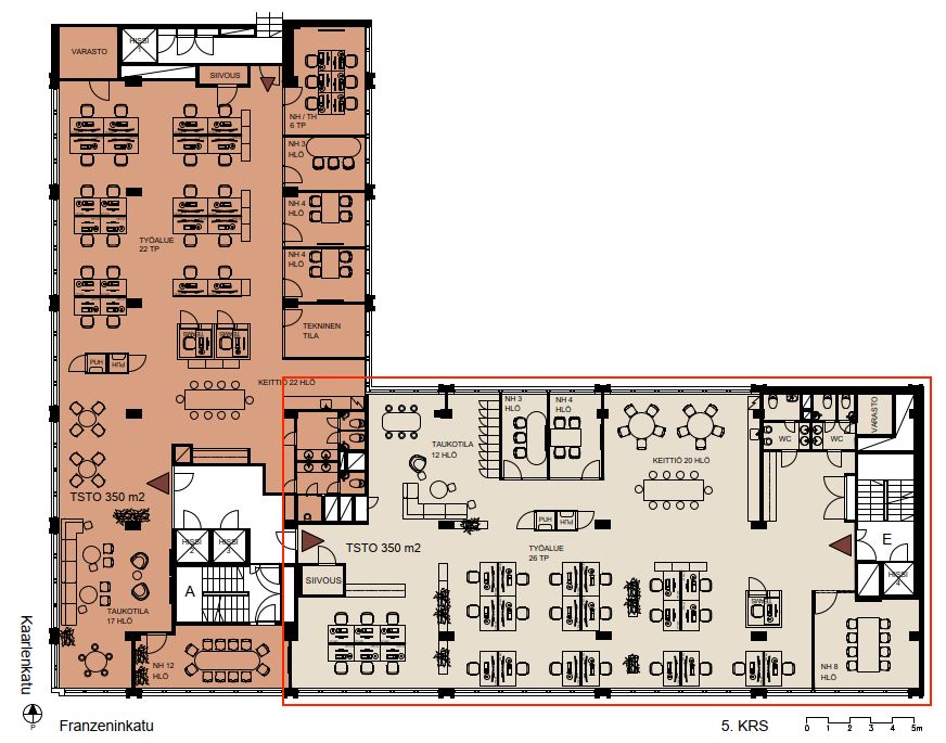
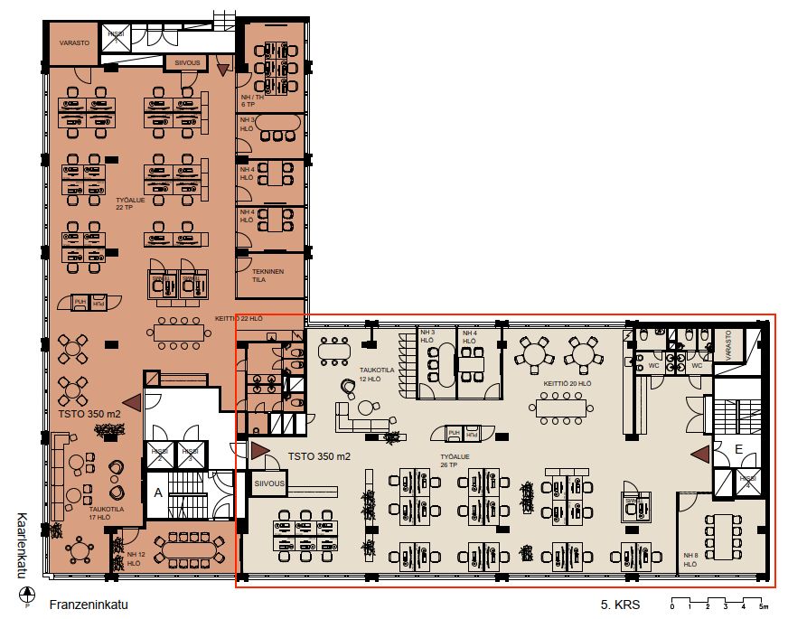
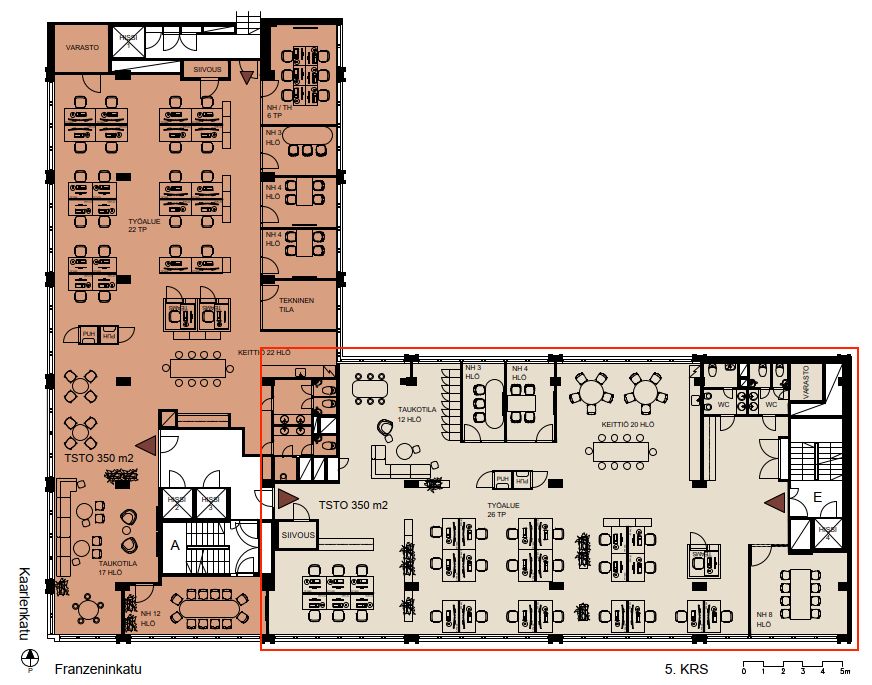
Siisti ja käyttäjän tarpeisiin mukautuva toimistotila Franzeninkadun puoleisessa siivessä. Oheinen pohjakuva on esimerkki tilankäytöstä.
Kerros: 5
Osoite
Kaarlenkatu 9-11, 00530 Helsinki
Tilatyyppi
Toimistotilaa
700 m2
Vapautuu
Heti vapaa
Ota yhteyttä
Pyydä lisätietoa
