Vuokrataan toimistotilat - Helsinki
Ratamestarinkatu 7, Itä-pasila, 00520 Helsinki #10816317
Rakennuksen kuvaus:
Moderni Lime Park on valmistunut v. 2003. Siinä on näyttävä nauhalasipintainen julkisivu ja tyylikäs vaaleaa ja puuta yhdistelevä sisätilojen yleisime. Kohteen sisätilat ovat suunniteltu joustaviksi ja vuokralaisten tarpeet huomioiden. Talon yläkerrassa on erittäin edustava sauna- ja kokoustila, minkä lisäksi katutason kerroksessa on vuokrattavia neuvottelutiloja. Kellarikerroksesta löytyy vuokrattavia autopaikkoja. Pasilan juna-asemalle on rakennukselta vain kävelymatka.
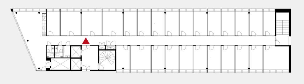
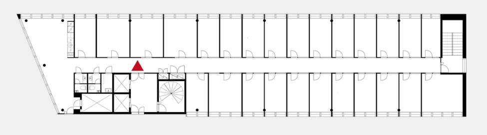
Tilan kuvaus:
Vapaana laadukasta ja viihtyisää toimistotilaa, joka voidaan toteuttaa joustavasti käyttäjän toiveiden mukaan. Tämä kuudennen kerroksen toimisto on nykyisin huonekonttoria, mutta voidaan avata avotilaksi. Kapean rungon ja pitkien ikkunarivien ansiosta tila on hyvin valoisa.
Kerros: 6
