Vuokrataan toimistotilat - Espoo
Keilaranta 6, Keilaniemi, 02150 Espoo #10816315
Rakennuksen kuvaus:
Keilaranta 468 on kolmen rakennuksen muodostama toimistokohde keskeisellä ja
näkyvällä paikalla Keilaniemessä. Rakennukset ovat valmistuneet vuonna 1987 ja käyneet läpi mittavan muodonmuutoksen; rakennukset saivat nykyaikaisen ja näyttävän ilmeen 2018. Kohde tarjoaakin nyt laadukasta, joustavaa ja tilatekniikaltaan uudistettu tilaa. Vuokralaisten käytössä on aulapalvelu, kaksi yli 100 hengen auditoriota, kokoustiloja, useita edustussaunoja, uima-allasosasto, kuntosali, squash-kenttä ja näköalaterassi sekä ravintola. Pysäköintitilaa on runsaasti, yli 500 paikkaa ja saatavilla autonpesupalvelu.
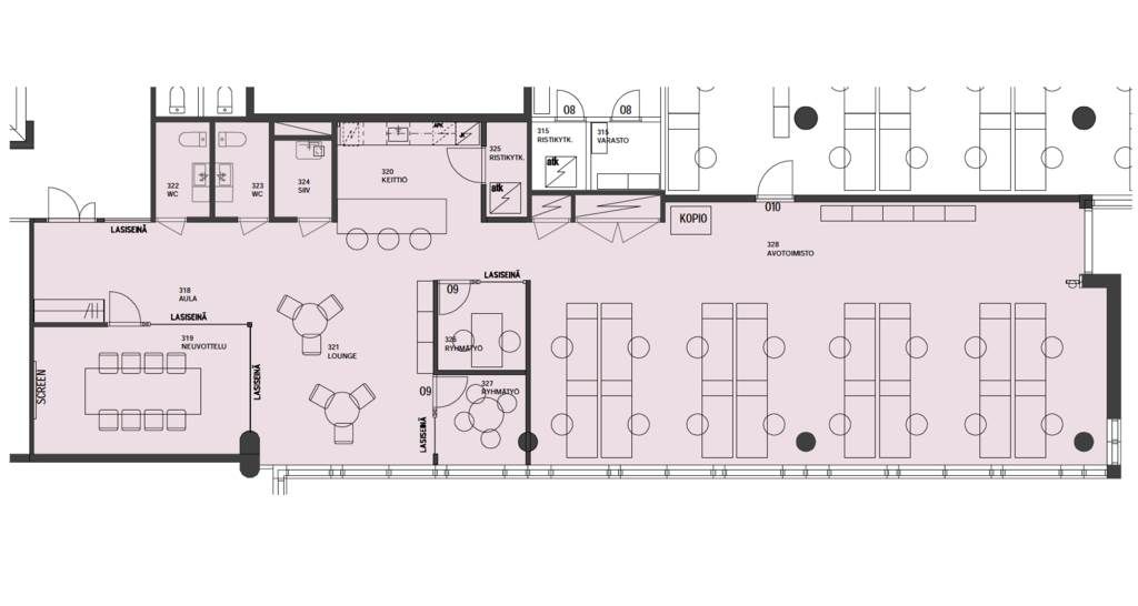
Tilan kuvaus:
Keilaranta 468:n uudistaminen on toteutettu omaperäisellä ja tyylikkäällä tavalla, joka luo viihtyisät puitteet parhaille osaajille nyt ja tulevaisuudessa. Kyseessä on kertaalleen remontoitu avokonttori johon voidaan tehdä pintaremonttia uuden käyttäjän tarpeiden mukaan. Vuokrattava tila sijaitsee talon kolmannessa kerroksessa.
Kerros: 3
