Vuokrataan toimistotilat - Helsinki
Vuorikatu 20, Keskusta, 00100 Helsinki #10816314
Rakennuksen kuvaus:
Vuorikatu 20 sijaitsee Kaisaniemessä vain kivenheiton päässä Rautatieasemasta. Helsingin yliopiston metroasemalle kulku aivan kiinteistön nurkilta. Kiinteistön tekniikka on uusittu nykyaikaiseksi. Kiinteistö jakautuu kahteen toimistosiipeen ja sisäpihalla on lasinen atrium valokuilulla, joka tuo tiloihin valoisuutta. Sisäpihalla mukava kaikkien vuokralaisten käytössä oleva oleskelualue. Talon käyttäjille pukuhuone säilytyskappeineen ja suihkuineen
kellarikerroksessa. Kiinteistössä on oma pysäköintihalli, jossa on 14 paikkaa. Europark ja Aimopark Kluuvi sijaitsevat lyhyen kävelymatkan päässä.
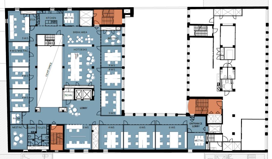
Tilan kuvaus:
Vuorikatu 20:n B-siiven toimisto vapaana vuokrattavaksi. Tila sijaitsee kolmannessa kerroksessa. Rakennuksen tilatekniikka on ajantasainen. Tämä toisen kerroksen tila on remontoitu siististi, mutta myös vuokralaisen tarpeet tilan suhteen huomioidaan.
Kerros: 2
