Vuokrataan toimistotilat - Helsinki
Mechelininkatu 1 a, Ruoholahti, keskusta, 00180 Helsinki #10816313
Rakennuksen kuvaus:
Mechelininkatu 1 sijaitsee näkyvällä paikalla Ruoholahdenkadun sillan varrella, Mechelininkadun ja Itämerenkadun risteyksessä, Länsiväylän päässä. Kohteessa on hyvät vuokralaispalvelut, kuten aulapalvelu, neuvottelutilat ja auditorio, uusi lounasravintola, ja oma autohalli. Osasta tiloista aukeaa hienot merimaisemat. Kohteen tilat ovat erityisen valoisat, sillä kohde sijaitsee ilmavasti irrallisena muista kiinteistöistä ja julkisivu on lasinen. sisätiloja halkova valoatrium tuo luonnonvaloa myös atriumin puoleisille seinille. Iso kerroskoko mahdollistaa isonkin henkilöstön istuttamisen yhteen tasoon. Tilat muokkautuvat vuokralaisen tarpeisiin huoneiksi tai avotilaksi.
Tilan kuvaus:
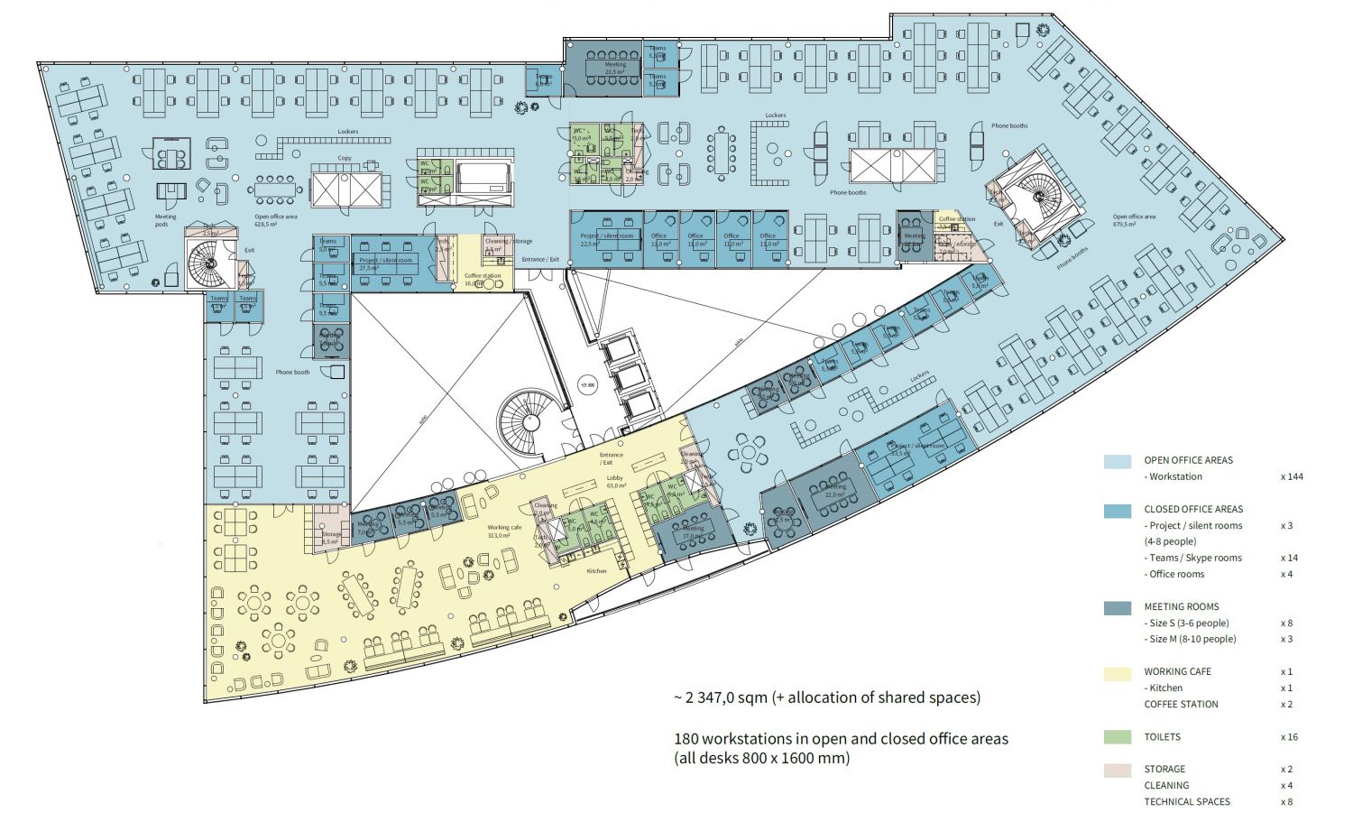
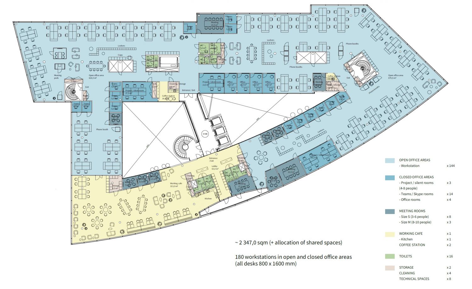
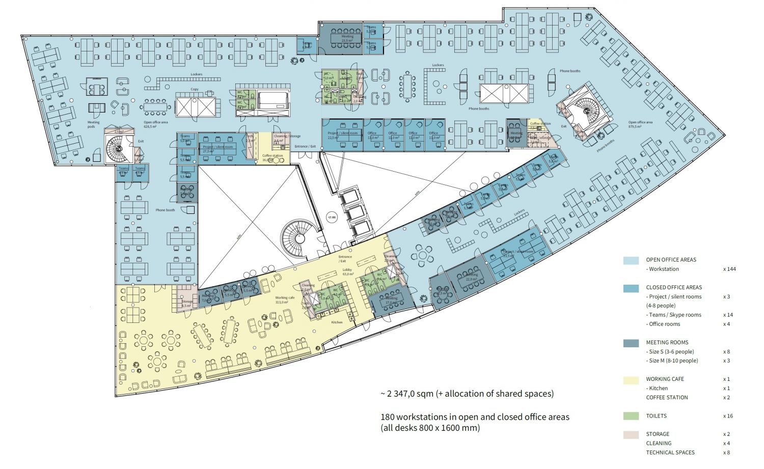
Koko kerros eli n. 2350 m2 yhdessä tasossa. Harvinainen mahdollisuus saada suurinkin henkilökunta samaan kerrokseen. Nämä 3. kerroksen valoisat ja viihtyisät tilat on varustettu näyttävillä näkymillä kohti Jätkäsaarta ja merta. Tilat remontoidaan vuokralaiselle. Tilan neliömäärään lisätään lisäksi jyvitykset yhteiskäyttötiloista.
Kerros: 3
