Vuokrataan toimistotilat - Helsinki
Kasarmikatu 44, Keskusta, 00130 Helsinki #10816310
Rakennuksen kuvaus:
Kaunis, vuonna 1899 rakennettu kiinteistö upealla sijainnilla Kaartinkaupungissa Kasarmikadun ja Rikhardinkadun kulmassa. Rakennus sijaitsee aivan Esplanadin puiston kupeessa ja vain muutaman korttelin päässä merestä ja satama-alueesta sekä Kauppatorilta. Kaikki keskustan lukuisat ravintolat sekä palvelut ovat aivan vieressä, lyhyen kävelyetäisyyden päässä. Kulku talolle on helppoa ja julkisia käyttäville juna-asemalle sekä metroon on vain 10 minuutin matka. Henkilöautoileville alueella tarjoaa parkkitilaa esimerkiksi läheinen Kasarmitorin Q-Park.
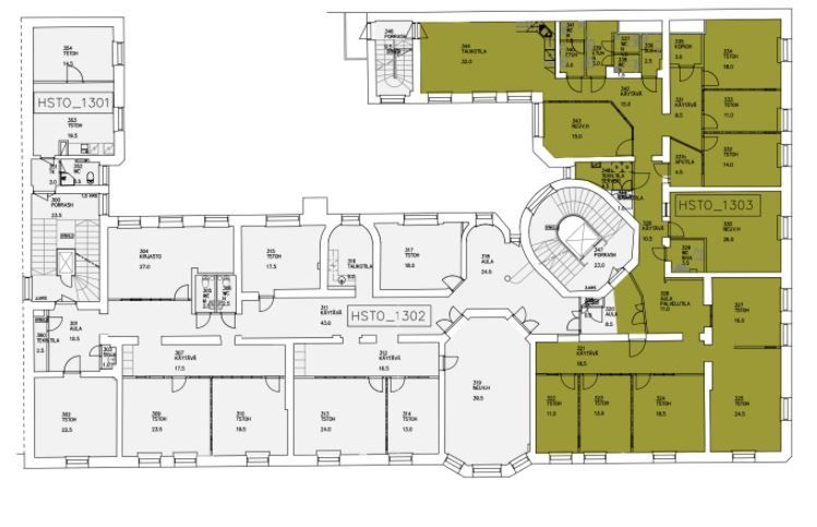
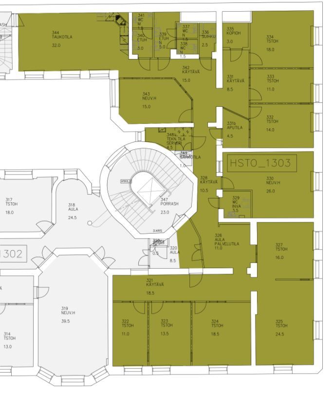
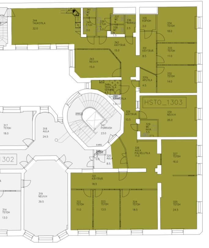
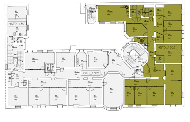
Tilan kuvaus:
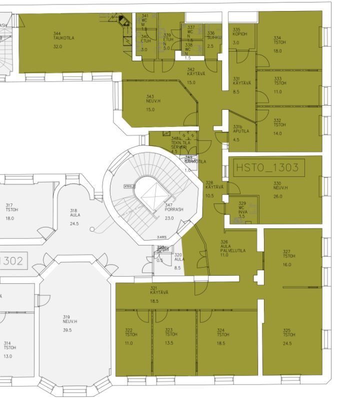
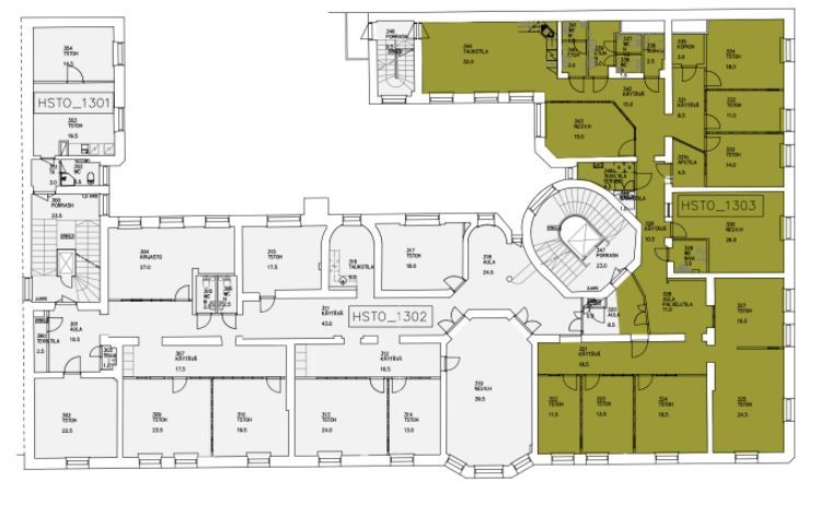
Vapaana kolmannen kerroksen hyväkuntoinen ja siisti toimisto. Vuokrattava tila jakautuu huoneisiin ja neuvottelutiloihin. Huoneita on mahdollista suurentaa asiakkaan tarpeen mukaan.
Kerros: 3
