Vuokrataan toimistotilat - Helsinki
Kaikukatu 3, Sörnäinen, 00530 Helsinki #10816305
Rakennuksen kuvaus:
Haiku on uniikki ja upea toimistokohde Kaikukadulla Sörnäisissä, joka on juuri saneerattu täydellisesti vastaamaan modernin työn vaatimuksia, säilyttäen kuitenkin sen ajalleen tyypillisen ulkokuoren ja tunnelman. Kohteella on 650 m2 kerroskoko ja tiloissa mukava kattokorkeus sekä pitkät ikkunarivit. Pohjakerroksessa on tyylikäs korkea sisääntuloaula ja suosittu ravintola Bruket. Haikusta löytyy kaksi vuokrattavaa neuvottelutilaa. Työnmatkalaisille on alakerrassa pyöräparkki ja suihku- ja sosiaalitilat sekä lämmin autohalli suoraan kiinteistön alla. Kohteen sijainti on keskeinen ja saavutettava aivan ratikka- ja bussipysäkkien vieressä ja myös Hakaniemen ja Sörnäisten metroasemat ovat n. 10min kävelymatkan päässä. Haikun saneerauksessa on panostettu erityisen paljon vastuullisuuteen ja kohteelle onkin myönnetty LEED Gold-sertifiointi huippupisteillä.
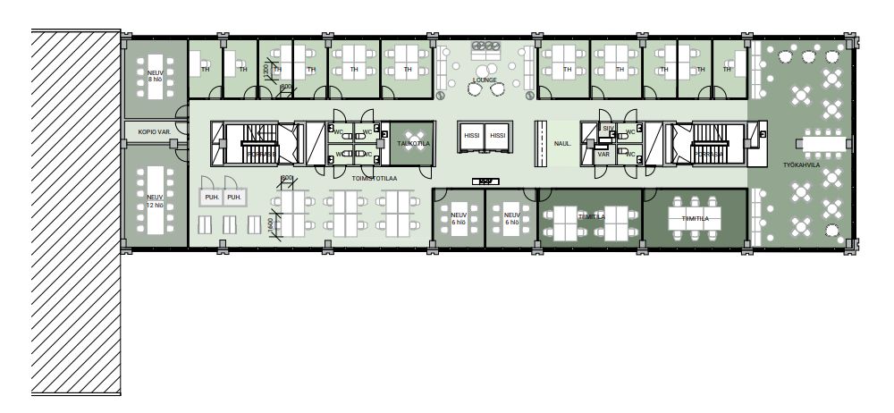
Tilan kuvaus:
Haiku on juuri täydellisesti saneerattu upea toimistokiinteistö Kaikukadulla Sörnäistenrannassa. Kohde on uudistettu perusteellisesti ja vastuullisesti vastaamaan nykypäivän toimistotyön vaatimuksiin. Haikusta löytyy upea korkea sisääntuloaula, erinomainen ravintola Bruket, vuokrattavia neuvotteluhuoneita, pyöräparkki sosiaalitiloineen sekä lämmin autohalli kiinteistön alla. Kohde on erinomaisesti saavutettavissa niin julkisilla kulkuvälineillä kuin pyörällä ja autollakin.
Kerroskoko on noin 650 m2 ja saatavilla on tilavaihtoehtoja erilaisista kokoluokista. Useamman kerroksen voi yhdistää sisäportaalla isommalle käyttäjälle, kun taas pienemmille käyttäjille tiloja löytyy noin 150 m2 kokoluokasta ylöspäin. Pohjaratkaisu on selkeä ja sallii monet tilankäytöt vuokralaisen tarpeiden mukaan. Tilat rakennetaan betonilta vastaamaan vuokralaisen toiveita.
Kerros: 2-7
