Vuokrataan toimistotilat - Espoo
Tekniikantie 4 d, Otaniemi, keilaniemi, 02150 Espoo #10816299
Rakennuksen kuvaus:
Vuonna 1990 rakennettu, neljästä rakennuksesta koostuva Aallonharja-kiinteistö on vastikään uudistettu. Tällä persoonallisella toimistokohteella on mahdollisuus huolehtia omasta viljelyalueesta, kuntoilla, huoltaa polkupyörää tai lainata kiinteistön sähköpyöriä. Peruspalvelut ovat myös tasokkaat ja kiinteistöllä on aula, ravintola, kokoustiloja ja auditorio, parkkitilaa sekä vielä pop-up-toimistoja esim. projektitöihin. Sijainti on työmatkalaiselle kätevä ja kohteelta on kävelymatka metroasemalle.
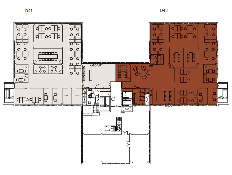
Tilan kuvaus:
Aallonharjan kiinteistöt ovat uudistettu ja tämä kyseinen tila remontoitu vain noin 2 vuotta sitten. Tila on siis muuttovalmiissa kunnossa, mutta tilaan on toteutettavissa pieniä muutoksia vuokralaisen tarpeen mukaan.
Kerros: 4
