Vuokrataan toimistotilat - Helsinki
Ratakatu 1 b, Keskusta, 00120 Helsinki #10816282
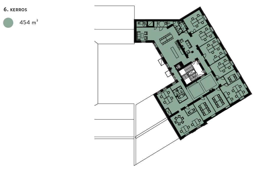
Rakennuksen kuvaus:
Kulttuurillisesti merkittävä Glorian rakennus sijaitsee arvostetun Kaartinkaupungin alueella. Suuri kiinteistö yltää Pieni Roobertinkadun puolelta, jossa Glorian teatteri sijaitse, aina Ratakadulle saakka, Yrjönkadun ja Ratakadun risteykseen. Kohteessa on aloitettu laaja saneeraus vuonna 2023, joka valmistuu 2025 ja kohde pääsee uuteen loistoon. Tilat modernisoidaan nykyaikan tarpeisiin, säästellen sen oma henki ja tunnelma. Uudet toimistot saavuttavat luksus-tason korkeine huoneineen ja isoine ikkunoineen.
Tilan kuvaus:
Kuudes kerros hienoa valoisaa tilaa. Korkea huonekorkeus ja kaari-ikkunat tekevät tiloista näyttävät. Saneeratuissa tiloissa on moderni tekniikka ja viihtyisät työskentelyolosuhteet. Tiloista on katunäkymin lisäksi näkymät talon atrium-sisäpihalle, josta saneerauksen yhteydessä tehdään vehreä oleskelualue vuokralaisille. Ainutlaatuinen kohde, jonka sisätilojen laatu ja tilojen hurmaavuus yllättää. Tilat räätälöidään vuokralaiselle.
Kerros: 6
