Vuokrataan toimistotilat - Helsinki
Tammasaarenkatu 3 htc pinta, Ruoholahti, keskusta, 00180 Helsinki #10816271
Rakennuksen kuvaus:
htc Helsinki sijaitsee hienolla paikalla meren rannalla Ruoholahdessa. Kohde on valmistunut vuonna 2001 ja koostuu viidestä rakennuksesta. Talossa on paljon lasia ja ilmavuutta, mikä merinäköalan kanssa luo avarat olosuhteet. Käyttäjiä palvelee aula, ravintola, kuntosali, hieronta, kosmetologi, autopesula sekä neuvottelukeskus ja saunatilat. Kohteelta on kävelymatka metrolle ja ratikkapysäkki sijaitsee aivan kohteen läheisyydessä. Polkupyörille on säilytystilat. BREEAM In-Use Very Good -sertifioitu.
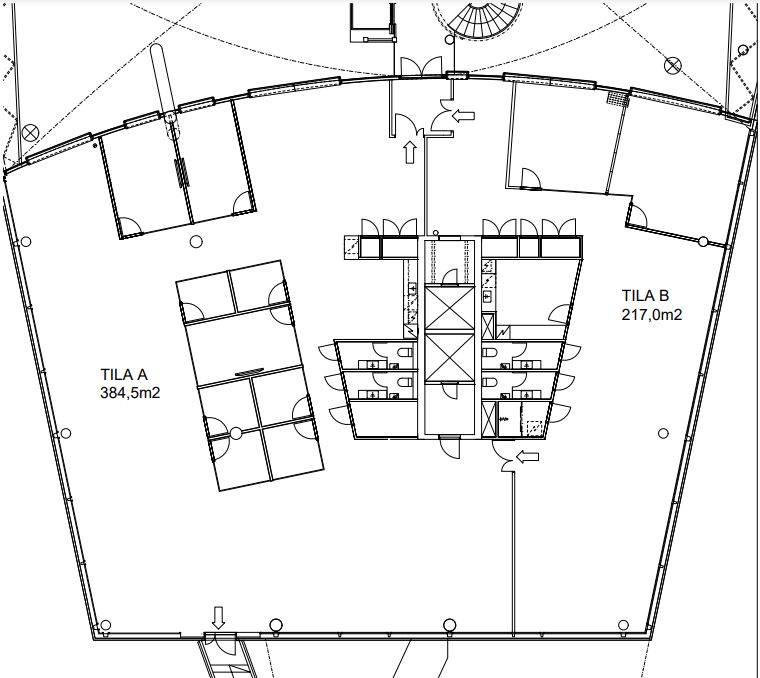
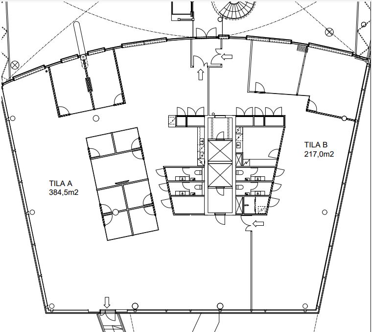
Tilan kuvaus:
Vapaana 3. kerroksen toimisto tästä hyvätasoisesta business parkista. Vuokralaisella on käytettävissä kaikki talon palvelut. Tilat ovat modernit ja muokattavissa käyttäjälleen.
Kerros: 3
