Vuokrataan toimistotilat - Helsinki
Paasivuorenkatu 3, Hakaniemi, 00530 Helsinki #10816270
Rakennuksen kuvaus:
Paasivuorenkatu 3:n sijainti Hakaniemessä Paasivuoren puistikon laidalla on rauhallinen ja samaan aikaan metro ja vilkas ydinkeskusta on vain lyhyen kävelymatkan päässä. Ikkunoista on puistomaisema ja sisäpihalla on talvipuutarha. Vuonna 1981 pankiksi valmistunut talo on peruskorjattu vuonna 2011. Talossa säilytettiin pankkisalin sekä pääporrashuoneen 1980-luvun tyyli luonnonkivilaatoituksineen. Talossa on tilaussauna.
Tilan kuvaus:
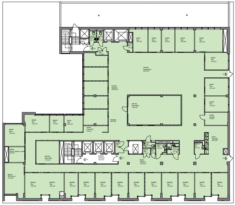
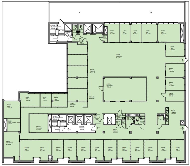
Hakaniemiestä vapaana vuokrattavaksi toimistotilaa kolmessa kerroksessa. Tämä tila kattaa koko kerroksen sekä katutasossa (815,5m2), kolmannessa (1023m2) että neljännessä (902m2) kerroksissa. Ensimmäisen kerroksen tila on erityisen uniikki, korkea pankkisali parvitiloineen. Tilat ovat peruskorjattu talon alkuperäistä tunnelmaa kadottamatta. Vieressä Hakaniemen kattavat palvelut ja alueelle loistavat julkiset kulkuyhteydet.
Kerros: 3-4
