Vuokrataan toimistotilat - Helsinki
Paasivuorenkatu 3, Hakaniemi, 00530 Helsinki #10816267
Rakennuksen kuvaus:
Paasivuorenkatu 3:n sijainti Hakaniemessä Paasivuoren puistikon laidalla on rauhallinen ja samaan aikaan metro ja vilkas ydinkeskusta on vain lyhyen kävelymatkan päässä. Ikkunoista on puistomaisema ja sisäpihalla on talvipuutarha. Vuonna 1981 pankiksi valmistunut talo on peruskorjattu vuonna 2011. Talossa säilytettiin pankkisalin sekä pääporrashuoneen 1980-luvun tyyli luonnonkivilaatoituksineen. Talossa on tilaussauna.
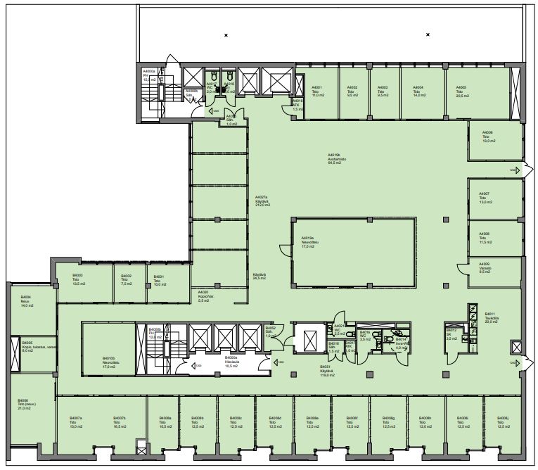
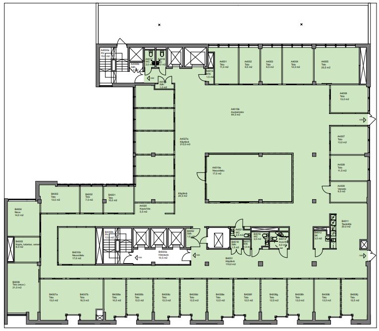
Tilan kuvaus:
Hakaniemiestä vapaana vuokrattavaksi toimistotila kiinteistön neljännestä kerroksesta. Tämä tila kattaa koko kerroksen. Tila on peruskorjattu talon alkuperäistä tunnelmaa kadottamatta. Vieressä Hakaniemen kattavat palvelut ja alueelle loistavat julkiset kulkuyhteydet.
Kerros: 4
