Vuokrataan toimistotilat - Helsinki
Kumpulantie 5, Vallila, 00530 Helsinki #10816264
Rakennuksen kuvaus:
Pikseli on rakennettu 1999 Vallilaan keskeiselle paikalle. Kiinteistössä on ravintola, aulapalvelu, saunaosasto sekä neuvotteluhuoneita vuokrattavana. Tavarahissiyhteys ja lastausmahdollisuus omalla tontilla. Alueelle on hyvät liikenneyhteydet, sillä Pasilan juna-asema sijaitsee kävelyetäisyydellä ja lähin raitiovaunupysäkki on suoraan kiinteistön edessä.
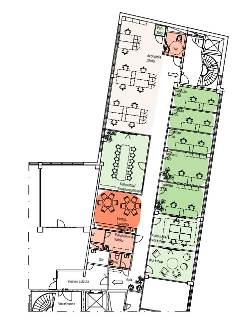
Tilan kuvaus:
Vapanaa hyvä monitilatoimisto kiinteistön neljännestä kerroksesta. Tilassa sekä avotilaa, että työhuoneita. Siistiä, hyväkuntoista tilaa, joka remontoidaan vuokralaiselle.
Kerros: 4
Osoite
Kumpulantie 5, 00530 Helsinki
Tilatyyppi
Toimistotilaa
312 m2
Vapautuu
Heti vapaa
Ota yhteyttä
Pyydä lisätietoa
