Vuokrataan toimistotilat - Helsinki
Itämerenkatu 3, Ruoholahti, keskusta, 00180 Helsinki #10816262
Rakennuksen kuvaus:
Itämerenkatu 3 sijaitsee Ruoholahden ytimessä hyvillä yhteyksillä. Vuonna 1998 rakennettu kiinteistö on vastikään täysin saneerattu ja pääkonttoritason tilat viimeisteltiin nykyvaatimusten tasolle. Talossa on aulapalvelu, ravintola, kokoushuoneet, parkkihalli, kuntosali, sauna ja suihkutilat. Ratikkapysäkki on suoraan talon edessä ja metrolle on lyhyt kävelymatka.
Tilan kuvaus:
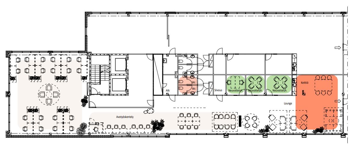
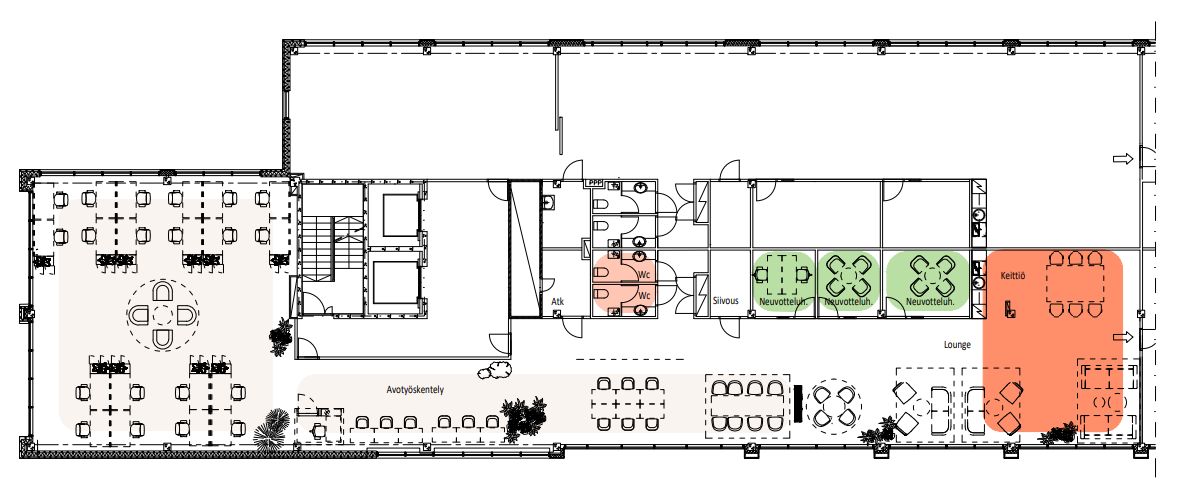
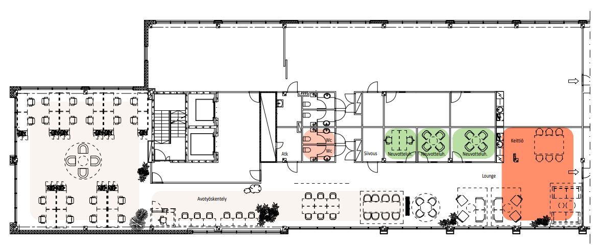
Tasokkaasti remontoitu kohde, jossa tarjolla toisen kerroksen valoisa toimistotila. Talon toimistotilat suunnitellaan uuden käyttäjän tarpeiden mukaiseksi, tiloista rakennetaan esimerkiksi tilankäytöltään monipuolinen ja viihtyisä monitilaympäristö. Myös muut tilaratkaisut onnistuvat. Ruoholahden keskeinen sijainti on työntekijöiden suosiossa ja hyvät palvelut takaa viihtyvyyden.
Kerros: 2
