Vuokrataan toimistotilat - Helsinki
Lintulahdenkuja 10, Sörnäinen, 00500 Helsinki #10816232
Rakennuksen kuvaus:
Lintulahden toimistotalo sijaitsee näkyvästi Sörnäisten Rantatiellä, vain kävelymatkan päässä Hakaniemen ja Sörnäisen metroasemilta. Kohde on valmistunut 2009 ja se on LEED Platinum -sertifioitu. Tasokkaassa kohteessa palvelee lämmitetty autohalli, ravintola, aulapalvelu sekä iso neuvotteluhuonekeskus palveluineen.
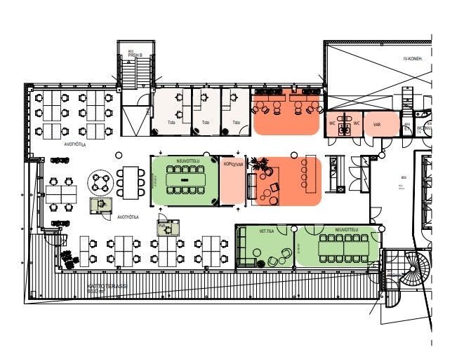
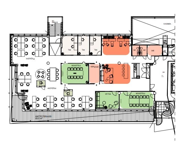
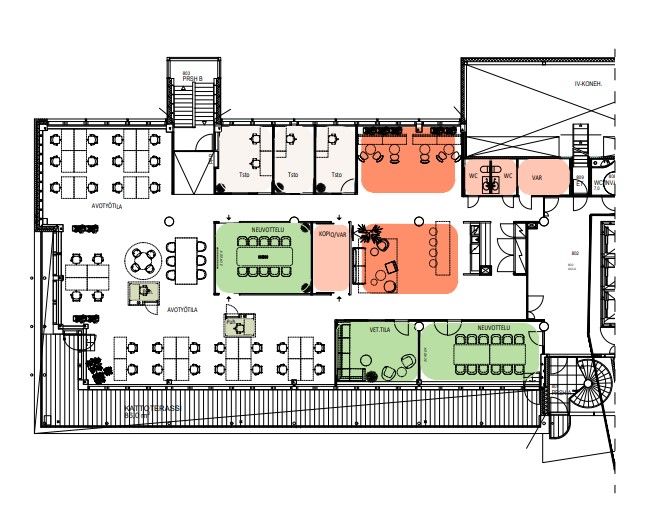
Tilan kuvaus:
Ylimmän kerroksen toimistotila hienoin maisemin. Tilan voi joustavasti ottaa käyttöön joko huonetoimistona, avotoimistona tai näiden yhdistelmänä ja se remontoidaan vuokralaisen tarpeisiin.
Kerros: 8
Osoite
Lintulahdenkuja 10, 00500 Helsinki
Tilatyyppi
Toimistotilaa
534 m2
Vapautuu
Heti vapaa
Ota yhteyttä
Pyydä lisätietoa
